Prodej bytu 3+1 56 m²
Růžová, Most
2 100 000 Kč Chci spočítat hypotéku
Prodej bytu 3+1, ul. Růžová Most
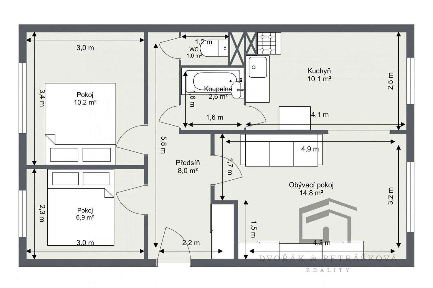
Realitní společnost Dvořák & Petrášková reality vám nabízí k prodeji byt v osobním vlastnictví 3+1 se sklepem a komorou na patře o celkové ploše 56 m².
Bytová jednotka je ve stavu před rekonstrukcí a je umístěná v posledním, tedy 8. patře panelového domu s výtahem na adrese Růžová 3088/17. Na patře jsou pouze 3 byty s klidnými sousedy, kteří zde žijí řadu let. Byt disponuje předsíní s vestavěnými skříněmi, vstupy do dvou ložnic, obývacího pokoje, do koupelny a na toaletu. Na obývací pokoj navazuje oddělená kuchyně s místem na jídelní stůl a vstupem do koupelny.
Koupelna s vanou je v původním stavu s umakartovým jádrem a toaleta je umístěna samostatně. Rozvody elektřiny jsou původní, tedy v hliníku. Byt je vhodný k celkové rekonstrukci. Nábytek v nemovitosti můžeme ponechat či odvést, obojí v rámci kupní ceny. V bytě je plyn a elektřina. Teplou vodu a ohřev TUV zajišťuje dálkový rozvod z teplárny. K bytu náleží komora na patře (2 m²) a sklep (2 m²) v prvním podzemním patře.
Panelový dům je zateplený, okna jsou plastová a střecha byla taktéž v posledních letech revitalizována.
Byt není zatížený žádnými právními vadami. Plánek 2D reflektuje současný stav bytu, 3D poté návrh možné rekonstrukce koupelny a kuchyně.
Parkování je možné před domem.
Měsíční poplatky v rámci SVJ jsou pro 2 osoby 4.800,- Kč.
V lokalitě je veškerá občanská vybavenost, školy, školky, v blízkosti oblíbený OC Centrál Most a Aquapark Most.
S financováním Vám ráda pomohu. Prohlídky jsou možné po předchozí domluvě.
Pro více informací mě neváhejte kontaktovat.
- Číslo zakázky
- IDNES-25035
- Cena
- 2 100 000 Kč Spočítat hypotéku
- Konstrukce budovy
- panelová
- Stav bytu
- před rekonstrukcí
- Vlastnictví
- osobní
- Užitná plocha
- 56 m2
- Podlaží
- 7. patro (8. NP)
- Počet podlaží budovy
- 8 podlaží
- Plyn
- nezaveden
- Elektřina
- 230V
- PENB
- G (vyhl. č. 264/2020 Sb.)
- Spočítej stěhování
-
Nemůžete najít tu správnou nemovitost ke koupi? Zadejte si poptávku. Rádi Vám s hledáním pomůžeme.
Realitní novinky
Jak vybrat správnou výšku a šířku lešení
05.11.2025 16:19 Komerční sdělení
Při realitním obchodu nechte nemovitost prověřit a prodávat profesionály
29.10.2025 23:00 Komerční sdělení
Nápady volebních programů na regulaci realitního trhu
09.10.2025 07:36 Komerční sdělení
Jak na rekonstrukci bytu, který chcete pronajímat
01.10.2025 11:16 Komerční sdělení
Investiční příležitost: Rekreační areál u Hluboké nad Vltavou míří mezi nejatraktivnější projekty v ČR
17.09.2025 10:15 Komerční sdělení