Prodej domu 115 m² s pozemkem 1 210 m²
Velký průhon, Dymokury, okres Nymburk
4 990 000 Kč
3 690 000 Kč
Chci spočítat hypotéku
Dymokury, prodej RD 2+1 na pozemku 1210 m², okr. Nymburk
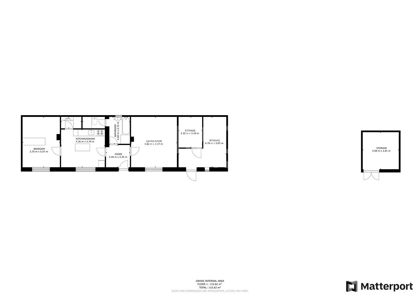
Nabízíme vám k prodej rodinný dům 2+1 v obci Dymokury, okres Nymburk.
Dům je v původním udržovaném stavu. Dispozice domu - vstupní chodba, obývací pokoj, koupelna s vanou a toaletou, kuchyně s jídelnou a spíží, ložnice. Na dům je napojená dílna. Na pozemku se dále nachází samostatně stojící garáž. Dům je napojený na kanalizaci a vodovod. Elektřina včetně 380V. Přípojka optického kabelu na hranici pozemku. Vytápění kotlem na tuhá paliva, ohřev vody zajišťuje elektrický boiler.
V obci Dymokury se nachází základní škola, autobusová doprava, potraviny, zdravotní středisko, benzinová pumpa.
Kompletní občanská vybavenost se nachází v Nymburce (18km) nebo v Poděbradech (17km).
- Číslo zakázky
- IDNES-3886
- Cena
- 3 690 000 Kč Spočítat hypotéku
- Konstrukce budovy
- smíšená
- Stav budovy
- dobrý stav
- Poloha domu
- řadový
- Kolaudace
- 1980
- Plocha pozemku
- 1210 m2
- Zastavěná plocha
- 121 m2
- Užitná plocha
- 115 m2
- Počet podlaží
- 1 podlaží
- Počet místností
- 2
- Elektřina
- 230V, 230-400V
- Odpad
- veřejná kanalizace
- Vybavení domu
- nezařízený
- PENB
- G (vyhl. č. 264/2020 Sb.)
- Spočítej stěhování
-
Nemůžete najít tu správnou nemovitost ke koupi? Zadejte si poptávku. Rádi Vám s hledáním pomůžeme.
Realitní novinky
Jak navrhnout funkční a stylovou koupelnu v malém bytě?
11.11.2025 08:10 Komerční sdělení
Jak vybrat správnou výšku a šířku lešení
05.11.2025 16:19 Komerční sdělení
Při realitním obchodu nechte nemovitost prověřit a prodávat profesionály
29.10.2025 23:00 Komerční sdělení
Nápady volebních programů na regulaci realitního trhu
09.10.2025 07:36 Komerční sdělení
Jak na rekonstrukci bytu, který chcete pronajímat
01.10.2025 11:16 Komerční sdělení