Prodej domu 152 m² s pozemkem 1 984 m²
Janůvky, okres Svitavy
2 030 000 Kč Chci spočítat hypotéku
Rodinný dům na prodej, Janůvky, Janůvky, okr. Svitavy
Nabízíme k prodeji dvoupodlažní samostatně stojící RD 4+ kk se započatou rekonstrukcí, s velkým pozemkem, v obci Janůvky, 10 km od Moravské Třebové a 20 km od Svitav.
Celková výměra parcely je 1984 m², zastavěná plocha a nádvoří 222 m², užitná plocha cca 152 m². Parcela má nepravidelný tvar a nachází se na východním okraji střední části obce.
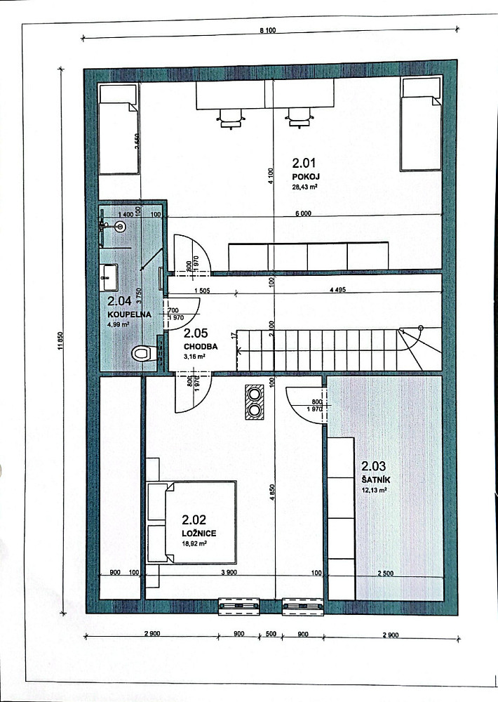
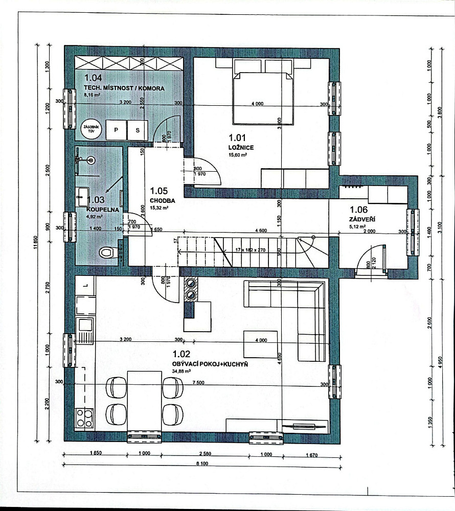
Dům o dispozici 4+kk + šatna má 2 nadzemní podlaží a je částečně podsklepený (25 m²).
Dům je v původním stavu, byla zahájena rekonstrukce – střešní krytina a krov, částečně rozvody elektřiny, částečně nové omítky, nová Eurookna.
Dům je zděný z pálených cihel a tvárnic, základy kamenné, vodorovná hydroizolace pod obvodovým zdivem domu, střecha sedlová, krytina betonová taška, stropy dřevěné a Hurdis, nová okna dřevěná Eurookna, podlahy betonové.
V přízemí se nachází zádveří, prostorná chodba, ložnice, obývací pokoj s kuchyňským koutem, koupelna s WC, technická místnost/komora. V patře 2 velké neprůchozí pokoje (1 s prostornou šatnou, koupelna s WC.
IS – obecní voda, el. energie (probíhá zřízení přípojky). V obci není kanalizace, likvidace odpadních vod vyřeší nový majitel individuálně ČOV. Plyn v obci také není.
Parkování na ulici před domem. Příjezd po zpevněné obecní komunikaci. Nezáplavové území.
Veškerá občanská vybavenost se nachází v 10 km vzdáleném Jevíčku.
Volné ihned. Cena vč. právního servisu a provize RK.
Majitel si vyhrazuje právo rozhodnout podle svých kritérií, s kým uzavře kupní smlouvu v případě více zájemců.
Kompletní informace o stavu nemovitosti obdržíte u makléře, uvedené údaje jsou pouze informativní.
- Číslo zakázky
- IDNES-9745
- Cena
- 2 030 000 Kč Spočítat hypotéku
- Konstrukce budovy
- smíšená
- Stav budovy
- před rekonstrukcí
- Poloha domu
- samostatný
- Plocha pozemku
- 1984 m2
- Užitná plocha
- 152 m2
- Voda
- veřejný
- PENB
- G (vyhl. č. 264/2020 Sb.)
- Spočítej stěhování
-
Nemůžete najít tu správnou nemovitost ke koupi? Zadejte si poptávku. Rádi Vám s hledáním pomůžeme.
Realitní novinky
Zhodnoťte svou nemovitost s realitní kanceláří, která myslí jinak
04.12.2025 03:15 Komerční sdělení
TOP 8 finalistů Realiťáka roku 2025: kdo zamíří do velkého finále?
02.12.2025 08:18
Máte činžovní dům v Praze? Jak ho prodat neveřejně za maximální cenu
30.11.2025 13:18 Komerční sdělení
Typické chyby a dezinformace v realitních inzerátech
27.11.2025 16:12 Komerční sdělení
Proč krátkodobý pronájem předčí standardní Nájemní smlouvu?
21.11.2025 09:47 Komerční sdělení