Prodej domu 97 m² s pozemkem 1 m²
Zlín
3 599 000 Kč
3 249 000 Kč
Chci spočítat hypotéku
Prodej rodinného domu 96,7 m², pozemek 1 m²
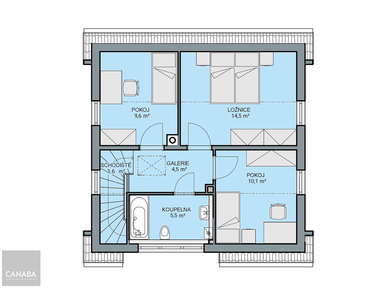
Nízkoenergetický rodinný dům UNO je určen pro pohodlný život 4 členné rodiny. Dispozice 4+1 nabízí podlahovou plochu 96,7 m². Bohatý vnitřní prostor zahrnuje v přízemí obývací pokoj s prakticky odděleným kuchyňským koutem a v patře ložnici a 2 dětské pokoje. Součástí rodinného domu je i samostatná toaleta a samostatná koupelna.
Dům bude za uvedenou cenu kompletně dokončen a vybaven (včetně krbového komínu) a připraven k okamžitému nastěhování. Vnější i vnitřní provedení domu provedeme dle Vašeho individuálního výběru (podl. krytiny, obklady, dlažby, sanitární keramika, vnější i vnitřní dveře a okna, barva a provedení fasády a střešní krytiny apod. ) Dům možno doplnit terasou, pergolou, garážovým stáním nebo garáží. V ceně domu není zahrnuta spodní stavba.
Najdeme vám nebo prověříme pozemek pro výstavbu. Zajistíme nejvýhodnější hypotéku.
Výstavba na klíč za pouhých 4 – 5 měsíců od vydání stavebního povolení. Unikátní masivní technologie se zárukou 50 let na konstrukční systém. Záruka nejnižší ceny a jistota 100 % kvality – za 35 let potvrzeno více než 8500 domy v ČR a Německu.
Přijeďte se podívat do Centra vzorových domů, navštivte náš nový vzorový dům Uno a projděte si dům svých snů na vlastní oči.
Těšíme se na Vaši návštěvu.
- Číslo zakázky
- IDNES-01140
- Cena
- 3 249 000 Kč Spočítat hypotéku
- Konstrukce budovy
- cihlová
- Stav budovy
- projekt
- Poloha domu
- samostatný
- Plocha pozemku
- 1 m2
- Užitná plocha
- 97 m2
- Počet místností
- 4
- Roční spotřeba energie
- 115 kWh
- PENB
- B (vyhl. č. 264/2020 Sb.)
- Připojení k internetu
- ověřit dostupnost
- Spočítej stěhování
-
Nemůžete najít tu správnou nemovitost ke koupi? Zadejte si poptávku. Rádi Vám s hledáním pomůžeme.
Realitní novinky
TOP 8 finalistů Realiťáka roku 2025: kdo zamíří do velkého finále?
02.12.2025 08:18
Máte činžovní dům v Praze? Jak ho prodat neveřejně za maximální cenu
30.11.2025 13:18 Komerční sdělení
Typické chyby a dezinformace v realitních inzerátech
27.11.2025 16:12 Komerční sdělení
Proč krátkodobý pronájem předčí standardní Nájemní smlouvu?
21.11.2025 09:47 Komerční sdělení
Revoluce v advokátních úschovách realitních financí
13.11.2025 00:06 Komerční sdělení