Pronájem domu 49 m² s pozemkem 203 m²
Nové Město na Moravě - Maršovice, okres Žďár nad Sázavou
14 000 Kč/měsíc
K pronájmu moderní 2+kk se soukromou terasou
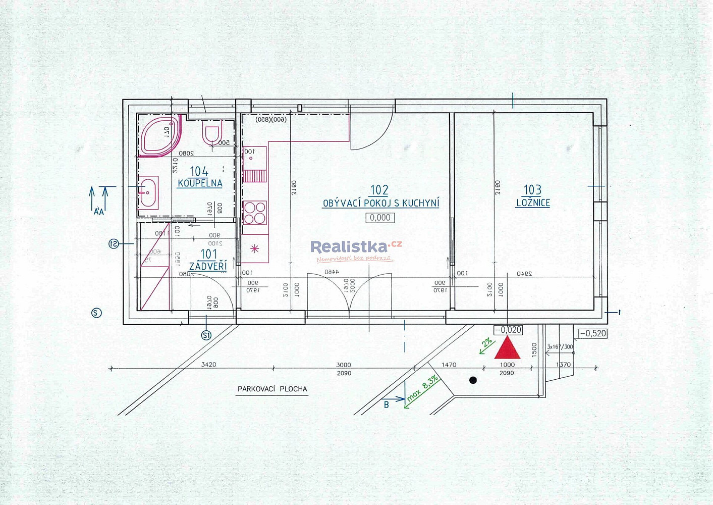
K pronájmu nabízíme příjemné moderní bydlení 2+kk (49 m²) v klidné a vyhledávané lokalitě Nad Městem. Jedná se o samostatný domek / studio s vlastním vstupem, terasou a možností parkování přímo u objektu.
Dům byl postaven v roce 2019 a je kompletně vybaven – včetně nábytku a veškerých spotřebičů (TV, pračka, lednice, kuchyňské vybavení). Dispozice zahrnuje ložnici, obývací pokoj s kuchyňským koutem a koupelnu s předsíní. Velká francouzská okna zajišťují dostatek světla a příjemný výhled do okolí.
K dispozici je také společná kolárna/lyžárna se zabezpečením (kamery + alarm).
Topení je řešeno elektrickým kotlem a podlahovým vytápěním, v létě oceníte klimatizaci. Internet je zaveden optickým kabelem.
Výhodou je spojení komfortu moderního bytu s pocitem soukromí rodinného domu.
Upřednostňujeme dlouhodobý pronájem.
- Číslo zakázky
- IDNES-N00186
- Cena
- 14 000 Kč/měsíc
- Konstrukce budovy
- cihlová
- Stav budovy
- dobrý stav
- Vlastnictví
- osobní
- Poloha domu
- samostatný
- Plocha pozemku
- 203 m2
- Zastavěná plocha
- 49 m2
- Užitná plocha
- 49 m2
- Počet podlaží
- 1 podlaží
- Terasa
- Internet
- Telefon
- Topení
- ústřední - elektrické
- Elektřina
- 230V
- Odpad
- veřejná kanalizace
- Dopravní dostupnost
- železnice, silnice, autobus, dálnice
- Občanská vybavenost
- škola, školka, zdravotnická zařízení, pošta, supermarket, kompletní síť obchodů a služeb
- Datum nastěhování
- 01.02.2026
- PENB
- G (vyhl. č. 78/2013 Sb.)
- Bezbariérový přístup
- Spočítej stěhování
-
Nemůžete najít tu správnou nemovitost k pronájmu? Zadejte si poptávku. Rádi Vám s hledáním pomůžeme.
Realitní novinky
Jak vybrat správnou výšku a šířku lešení
05.11.2025 16:19 Komerční sdělení
Při realitním obchodu nechte nemovitost prověřit a prodávat profesionály
29.10.2025 23:00 Komerční sdělení
Nápady volebních programů na regulaci realitního trhu
09.10.2025 07:36 Komerční sdělení
Jak na rekonstrukci bytu, který chcete pronajímat
01.10.2025 11:16 Komerční sdělení
Investiční příležitost: Rekreační areál u Hluboké nad Vltavou míří mezi nejatraktivnější projekty v ČR
17.09.2025 10:15 Komerční sdělení