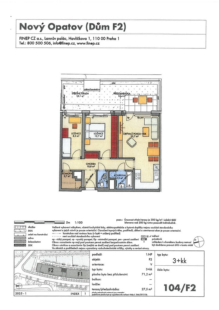
Prodej bytu 3+kk 71 m²
Bartůňkova, Praha 4 - Chodov
4 925 000 Kč Chci spočítat hypotéku
Prostorný družstevní byt 3+kk s terasou, předzahrádkou a garážovým stáním projekt Nový Opatov II
Nabízíme k prodeji družstevní byt o dispozici 3 + kk, který se nachází v novostavbě v rámci rezidenčního projektu Nový Opatov II. Tento moderní byt disponuje užitnou plochou 71,2 m² a součástí bytu je také terasa a předzahrádka o velikosti 27,5 m², orientované na východ, což zajišťuje příjemné proslunění během celého dne.
Aktuální cena bytu činí 4.925.000 Kč.
Splácení anuity ve výši 9.525.174 Kč probíhá formou měsíčních splátek.
Úroková sazba činí 4,99 % s možností splácení až po dobu 35 let.
Orientační měsíční splátka je 49.434 Kč.
Byt je aktuálně ve fázi výstavby, s plánovaným dokončením nejpozději do 30. září 2028. V průběhu výstavby mají budoucí majitelé možnost provádět klientské změny dle vlastního vkusu.
Převod do osobního vlastnictví bude možný až po dokončení stavby.
Lokalita je velmi klidná a nabízí blízkost Milíčovského a Kunratického lesa, což ocení zejména rodiny s dětmi.
V okolí jsou k dispozici hřiště, sportoviště, školy a školky, což přispívá k pohodlnému životu.
Dále je zde výborná dostupnost do centra města, a to jak metrem (stanice C – Opatov), tak autobusem, kde je dojezd do centra otázkou pouhých 15 minut.
Nákupní centrum Westfield Chodov je vzdálené jen krátkou jízdu od domu, což zvyšuje komfort každodenního nakupování.
V případě zájmu o více informaci mne neváhejte kontaktovat.
- Číslo zakázky
- IDNES-0049
- Cena
- 4 925 000 Kč Spočítat hypotéku
- Konstrukce budovy
- smíšená
- Stav bytu
- novostavba
- Vlastnictví
- družstevní
- Užitná plocha
- 71 m2
- Počet podlaží budovy
- 12 podlaží
- Terasa
- 28 m2
- Plocha zahrady
- 28 m2
- Parkování
- parkovací místo
- Elektřina
- 230V
- Vybavení
- nezařízený
- PENB
- G (vyhl. č. 264/2020 Sb.)
- Spočítej stěhování
-
Podobné nabídky
Nemůžete najít tu správnou nemovitost ke koupi? Zadejte si poptávku. Rádi Vám s hledáním pomůžeme.
Realitní novinky
Jak prodat nemovitost chytře a bezpečně: projekt Realiťák roku krok za krokem radí veřejnosti
08.12.2025 07:46
Zhodnoťte svou nemovitost s realitní kanceláří, která myslí jinak
04.12.2025 03:15 Komerční sdělení
TOP 8 finalistů Realiťáka roku 2025: kdo zamíří do velkého finále?
02.12.2025 08:18
Máte činžovní dům v Praze? Jak ho prodat neveřejně za maximální cenu
30.11.2025 13:18 Komerční sdělení
Typické chyby a dezinformace v realitních inzerátech
27.11.2025 16:12 Komerční sdělení