Prodej bytu 2+kk 44 m²
Na Planinách, Příbram - Příbram V-Zdaboř
4 190 000 Kč Chci spočítat hypotéku
Moderní byt 2+kk v Příbrami na dosah přírody
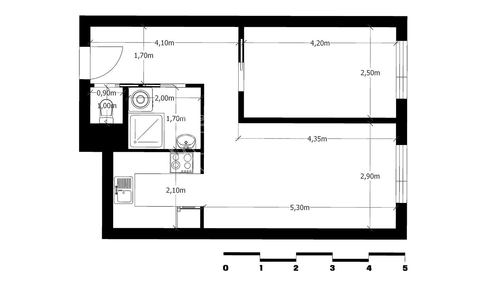
Moderní a barevný byt 2+kk o ploše 44 m² najdete v lokalitě, kde se byty moc neprodávají, protože si je původní majitelé drží ve vlastnictví. Poblíž se staví nové bytové domy v rámci Rezidence Zdaboř, které ale stojí cca 120 000 Kč/m² a to bez garážového stání, které si musíte dokoupit za 400 000 Kč.
Byt je po kompletní rekonstrukci, hýří barvami a má mnoho nadstandardních prvků – klimatizaci (umí i topit), velký sprchový kout, bodová světla, posuvné dveře nebo hlukově izolované stěny a podlahy. Provozní náklady jsou nízké, celkem asi 4 000 Kč pro 2 osoby. V kuchyni je zánovní plynový kondenzační kotel pouze pro tento byt. Ta je plně vybavena všemi elektrospotřebiči a kvalitním nábytkem. Okna bytu směřují na jihovýchod a je z nich krásný výhled do okolí.
Nachází se ve třetím, nejvyšším, patře dobře udržovaného cihlového domu v energetické třídě C bez výtahu. Nedávno ale byla na schodišti nainstalována pojízdná plošina, takže se v případě potřeby můžete vyvézt nahoru. V přízemí lze využívat prostornou kolárnu. Dům má novou fasádu a jen 9 bytů.
K bytu patří velký samostatný sklep 4 m² vhodný pro uložení spousty věcí. A za cenu 499 000 Kč si můžete přikoupit garáž v domě o velikosti 17 m². Má spoustu výhod – je na dálkové ovládání, má wi-fi připojení a zásuvku 400V, díky které můžete napájet svůj elektromobil. Výška stropu je 2,4 m, v místě vjezdu 2,1 m. Takže sem pohodlně vjedete i velkým SUV, ta mívají výšku kolem 1,8 m.
Byt najdete v ulici Na Planinách ve čtvrti Zdaboř. Ta je oblíbenou jižní částí Příbrami a to hlavně pro svůj klid a blízkost přírody. Do lesa to budete mít jen 100 metrů. Za nejbližším lesem na vás čeká Vokačovský rybník. O kus dál jsou Brdy, na druhou stranu Orlická nebo Slapská přehrada. Nakupovat můžete v Tescu, vedle kterého je Obi, Planeo, Benu a další obchody. V dochozí vzdálenosti najdete i poštu nebo praktického lékaře. V centru Příbrami jste asi za 7 minut. Na kraj Prahy dojedete autem za 40 minut, využít můžete i autobusové spojení. Do budoucna se plánuje obchvat města, který zlepší spojení na dálnici.
Přijďte se sami podívat a rozhlédnout.
- Číslo zakázky
- IDNES-17876
- Cena
- 4 190 000 Kč Spočítat hypotéku
- Konstrukce budovy
- smíšená
- Stav bytu
- velmi dobrý stav
- Vlastnictví
- osobní
- Přístupová komunikace
- asfalt
- Lokalita objektu
- klidná část
- Užitná plocha
- 44 m2
- Podlaží
- 3. patro (4. NP)
- Počet podlaží budovy
- 4 podlaží
- Internet
- Elektřina
- 230V, 230-400V
- Vybavení
- částečně zařízený
- Datum nastěhování
- 06.11.2025
- PENB
- C (vyhl. č. 148/2007 Sb.)
- Spočítej stěhování
-
Nemůžete najít tu správnou nemovitost ke koupi? Zadejte si poptávku. Rádi Vám s hledáním pomůžeme.
Realitní novinky
Revoluce v advokátních úschovách realitních financí
13.11.2025 00:06 Komerční sdělení
Jak navrhnout funkční a stylovou koupelnu v malém bytě?
11.11.2025 08:10 Komerční sdělení
Jak vybrat správnou výšku a šířku lešení
05.11.2025 16:19 Komerční sdělení
Při realitním obchodu nechte nemovitost prověřit a prodávat profesionály
29.10.2025 23:00 Komerční sdělení
Nápady volebních programů na regulaci realitního trhu
09.10.2025 07:36 Komerční sdělení