Prodej bytu 2+1 65 m²
Brodská, Žďár nad Sázavou - Žďár nad Sázavou 3
3 250 000 Kč Chci spočítat hypotéku
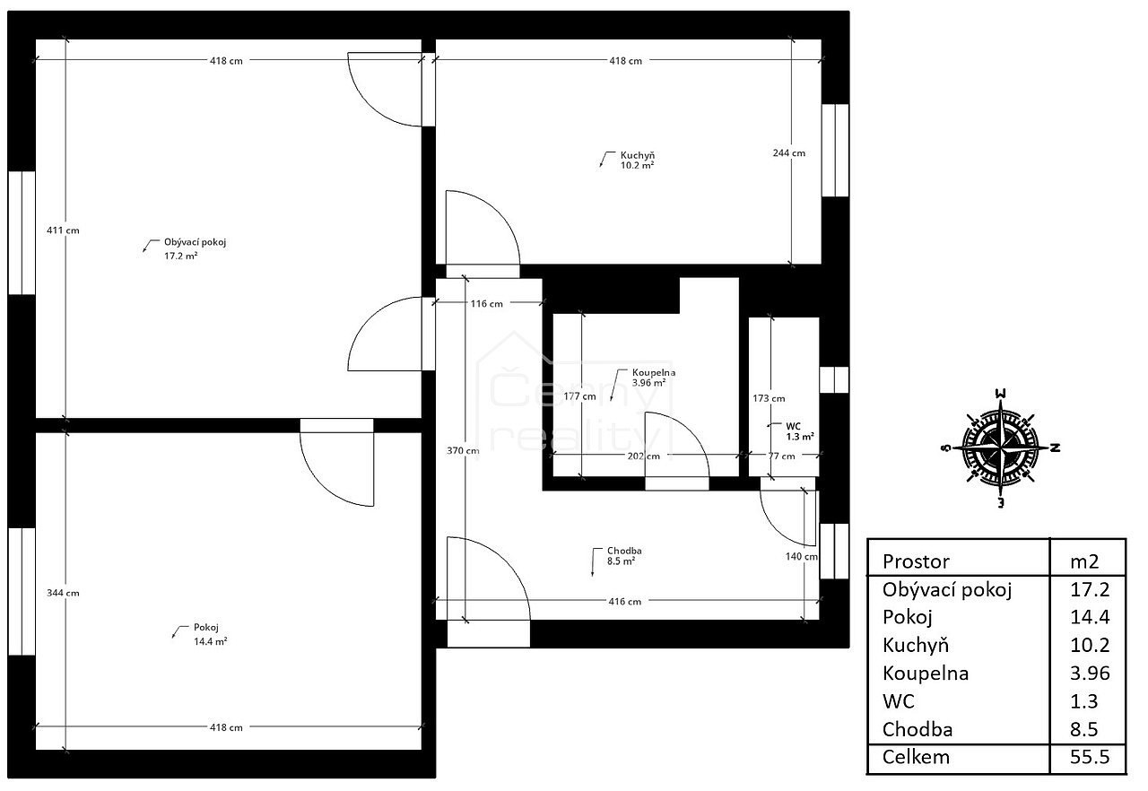
Prodej družstevního bytu 2+1 (55m²) ve Žďáru nad Sázavou, 3. NP, dva sklepy
Prodej družstevního bytu 2+1 (55m²) ve Žďáru nad Sázavou, ve 3. NP, dva sklepy. Na adrese Brodská 2005/75, Žďár nad Sázavou. Byt se nachází v kompletně revitalizovaném domě, tzn. dům je zateplen, v bytě jsou osazena plastová okna s izolačním dvojsklem. Jinak je bytová jednotka v původnějším stavu. Dispozice: vstupní chodba s oknem na sever, o ploše 8,7 m², koupelna s vanou 3,6 m², toaleta s oknem 1,4 m², kuchyň je otočena na severní stranu 10,3 m², obývací pokoj na jih 17,2 m², další pokoj na jižní stranu 14,4 m². V přízemí domu náleží k bytové jednotce dva sklepy, o plochách 5,2 m² a 4,3 m². Užitná plocha bytu je 55,5 m². Celková plocha bytu vč. sklepů je 65 m². Parkování je možné před objektem. V obci je veškerá občanská vybavenost. ID 7525.
- Číslo zakázky
- IDNES-707
- Cena
- 3 250 000 Kč Spočítat hypotéku
- Konstrukce budovy
- cihlová
- Stav bytu
- dobrý stav
- Vlastnictví
- družstevní
- Lokalita objektu
- rušná část
- Užitná plocha
- 65 m2
- Podlaží
- 3. patro (4. NP)
- Počet podlaží budovy
- 4 podlaží
- Sklep
- Internet
- Elektřina
- 230V
- Datum nastěhování
- 01.12.2025
- Roční spotřeba energie
- 122 kWh
- PENB
- C (vyhl. č. 264/2020 Sb.)
- Spočítej stěhování
-
Nemůžete najít tu správnou nemovitost ke koupi? Zadejte si poptávku. Rádi Vám s hledáním pomůžeme.
Realitní novinky
Jak navrhnout funkční a stylovou koupelnu v malém bytě?
11.11.2025 08:10 Komerční sdělení
Jak vybrat správnou výšku a šířku lešení
05.11.2025 16:19 Komerční sdělení
Při realitním obchodu nechte nemovitost prověřit a prodávat profesionály
29.10.2025 23:00 Komerční sdělení
Nápady volebních programů na regulaci realitního trhu
09.10.2025 07:36 Komerční sdělení
Jak na rekonstrukci bytu, který chcete pronajímat
01.10.2025 11:16 Komerční sdělení