Prodej bytu 4+1 78 m²
Zhořec, okres Pelhřimov
2 863 350 Kč Chci spočítat hypotéku
Prodej byt 4+1, 78m², Zhořec
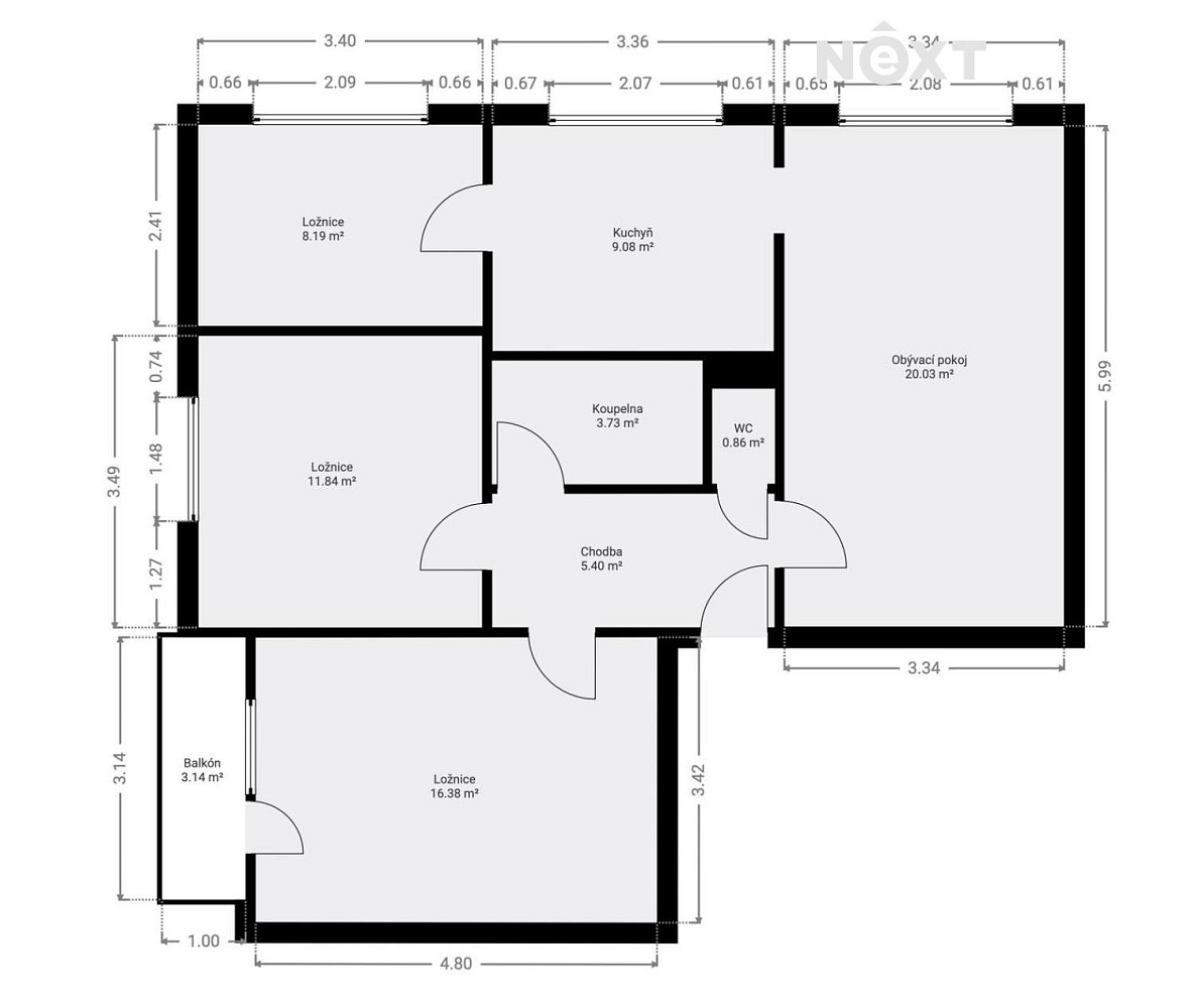
Prostorný byt 4+1 se zahradou, garáží a sklepem – Zhořec u Pacova. V přímém zastoupení majitele si vám dovolujeme nabídnout velmi dobře udržovaný byt o dispozici 4+1 s vlastní zahradou, garáží a sklepem, nacházející se v klidné obci Zhořec u Pelhřimova. Byt v osobním vlastnictví je situován ve 3. nadzemním podlaží bytového domu o šesti jednotkách. Dispozičně nabízí prostorný obývací pokoj, tři samostatné ložnice, kuchyni, koupelnu, samostatné WC a balkón s příjemným výhledem do okolní krajiny. Vytápění je zajištěno kotlem na tuhá paliva umístěným ve sklepě, který splňuje aktuální evropské normy. Teplo je rozváděno pomocí radiátorů. Komfort bydlení zvyšují také krbová kamna umístěná v obývacím pokoji, která umožňují příjemné vytápění i v chladnějších dnech. Součástí nabídky je rovněž zahrada o velikosti cca 220 m², ke které náleží přístavek s vybudovanou dílnou. Zahrada nabízí prostor pro relaxaci, pěstování vlastních plodin nebo posezení s přáteli u grilu. Na pozemku se dále nachází plechová garáž pro jedno vozidlo, která zajišťuje pohodlné parkování i v zimních měsících. Obec Zhořec leží v malebné přírodě Vysočiny a nabízí ideální podmínky pro turistiku a cykloturistiku. V blízkosti se nachází město Pacov, hrad Kámen a města Pelhřimov či Humpolec s rychlým napojením na dálnici D1. Doporučujeme osobní prohlídku. Tato nabídka spojuje klidné bydlení v přírodě s výbornou dostupností a veškerým komfortem rodinného života. Nemovitost lze financovat hypotečním úvěrem se kterým vám rádi pomůžeme. Doporučujeme.
- Číslo zakázky
- IDNES-N111984
- Cena
- 2 863 350 Kč Spočítat hypotéku
- Konstrukce budovy
- cihlová
- Stav budovy
- dobrý stav
- Stav bytu
- dobrý stav
- Vlastnictví
- osobní
- Lokalita objektu
- klidná část
- Užitná plocha
- 78 m2
- Podlaží
- 1. patro (2. NP)
- Počet podlaží budovy
- 3 podlaží
- Sklep
- Balkon
- 3 m2
- Plocha zahrady
- 227 m2
- Vybavení
- nezařízený
- PENB
- G (vyhl. č. 78/2013 Sb.)
- Spočítej stěhování
-
Nemůžete najít tu správnou nemovitost ke koupi? Zadejte si poptávku. Rádi Vám s hledáním pomůžeme.
Realitní novinky
Při realitním obchodu nechte nemovitost prověřit a prodávat profesionály
29.10.2025 23:00 Komerční sdělení
Nápady volebních programů na regulaci realitního trhu
09.10.2025 07:36 Komerční sdělení
Jak na rekonstrukci bytu, který chcete pronajímat
01.10.2025 11:16 Komerční sdělení
Investiční příležitost: Rekreační areál u Hluboké nad Vltavou míří mezi nejatraktivnější projekty v ČR
17.09.2025 10:15 Komerční sdělení
Chytrá domácnost pro každého: 5 dostupných gadgetů, které usnadní život
04.09.2025 15:09 Komerční sdělení