Prodej domu 65 m² s pozemkem 76 m²
Březinky, okres Svitavy
3 500 000 Kč
3 280 000 Kč
Chci spočítat hypotéku
Prodej rodinného domu po rekonstrukci, Březinky
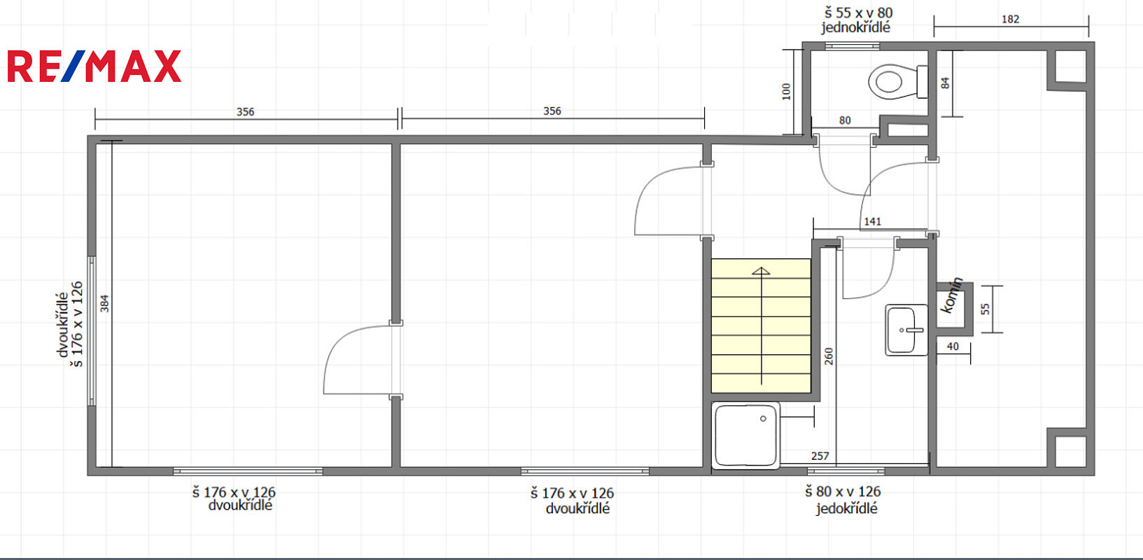
Nabízíme k prodeji tento hezký dvoupodlažní rodinný dům umístěný v klidné obci Březinky. Dům s dobrou dopravní dostupností (Moravská Třebová 18 km, Mohelnice 20 km, Litovel 25 km) je obklopený okolní zástavbou rodinných domů a přírodou. V domě s dispozicí 3+kk naleznete v přízemí obývací místnost s kuchyňským koutem (21 m²), technickou místnost s el. bojlerem (3,2 m²), WC s prostorem pro pračku (4,2 m²). V 2. NP je průchozí místnost (13,5 m²), neprůchozí místnost (13,5 m²), koupelna (4,2 m²) WC (1 m²) a zastřešená terasa (6,8 m²). Dům má především jižní orientaci.
Dům, po celkové rekonstrukci z roku 2024, je napojen na obecní vodovod a elektřinu, odpady jsou svedeny do septiku. V celém domě jsou plastová okna. Jedná se o cihlový dům s dřevěnými trámovými stropy. Střecha je sedlová s plechovou pokrývkou. Ohřev tepla je zajištěn tepelným čerpadlem vzduch-voda a ohřev vody el. bojlerem. Podlaha v přízemí je pokryta dlažbou; v 2. NP je laminátová (mimo koupelnu a WC, kde je dlažba). Vnitřní omítky jsou štukové. Zajistíme Vám financování koupě této nemovitosti – bezplatná konzultace s našim finančním poradcem. Bližší informace u makléře nabídky.
- Číslo zakázky
- IDNES-160-NP02744
- Cena
- 3 280 000 Kč Spočítat hypotéku
- Konstrukce budovy
- cihlová
- Stav budovy
- po rekonstrukci
- Poloha domu
- samostatný
- Přístupová komunikace
- asfalt
- Lokalita projektu
- klidná část
- Kolaudace
- 1990
- Plocha pozemku
- 76 m2
- Zastavěná plocha
- 53 m2
- Užitná plocha
- 65 m2
- Počet podlaží
- 2 podlaží
- Počet místností
- 3
- Parkování
- parkovací místo
- Elektřina
- 230V
- Odpad
- septik / jímka
- Vybavení domu
- nezařízený
- PENB
- D (vyhl. č. 264/2020 Sb.)
- Spočítej stěhování
-
Nemůžete najít tu správnou nemovitost ke koupi? Zadejte si poptávku. Rádi Vám s hledáním pomůžeme.
Realitní novinky
Jak navrhnout funkční a stylovou koupelnu v malém bytě?
11.11.2025 08:10 Komerční sdělení
Jak vybrat správnou výšku a šířku lešení
05.11.2025 16:19 Komerční sdělení
Při realitním obchodu nechte nemovitost prověřit a prodávat profesionály
29.10.2025 23:00 Komerční sdělení
Nápady volebních programů na regulaci realitního trhu
09.10.2025 07:36 Komerční sdělení
Jak na rekonstrukci bytu, který chcete pronajímat
01.10.2025 11:16 Komerční sdělení