Prodej domu 151 m² s pozemkem 1 173 m² rezervováno
Dalečín, okres Žďár nad Sázavou
5 950 000 Kč
3 950 000 Kč
Chci spočítat hypotéku
Prodej RD Dalečín, Vysočina
Hledáte nemovitost v krásné přírodě, která je vhodná i pro dvougenerační bydlení? V tom případě pro vás máme zajímavou nabídku.
Ve výhradním zastoupení majitele si vám dovolujeme nabídnout k prodeji samostatně stojící RD s další přístavbou, který se nachází v malebné obci Dalečín, ve východním okraji Českomoravské vrchoviny. Jedná se o dvoupodlažní cihlový dům, který je kompletně podsklepen. Dům leží na velkém pozemku, obklopeném lesy.
Dům:
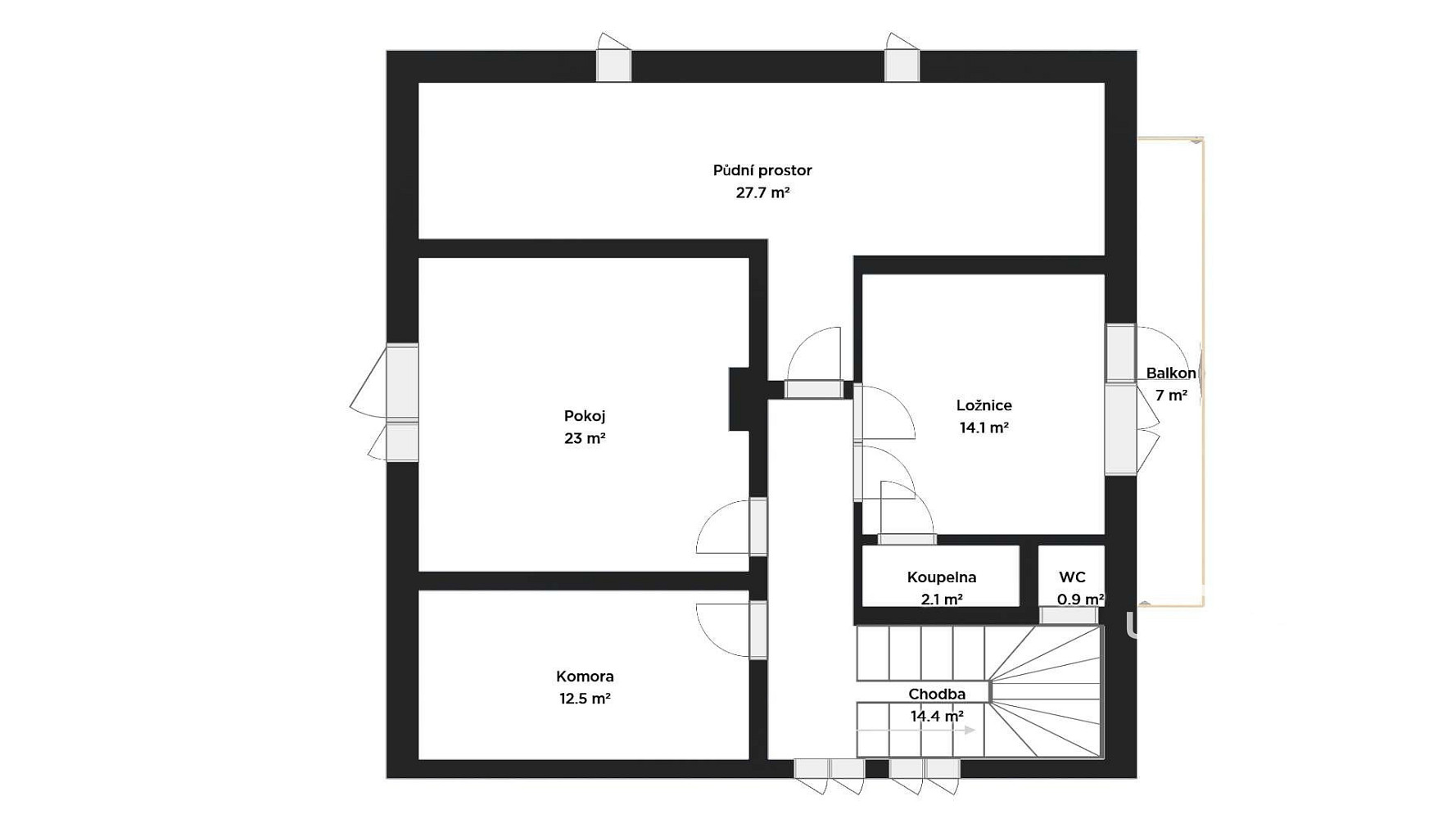
Dům lze využít po úpravách i jako dvougenerační. Dům je kompletně podsklepen a částečně nadúrovňový, tudíž lze minimálně 2 místnosti využít k bydlení, nebo alespoň jako dílnu. Střecha a krovy jsou v dobrém stavu a jsou zde instalována plastová okna. Interiér vyžaduje modernizaci. Vzhledem ke své specifické dispozici a prostorům jsou zde široké možnosti využití a realizace vašich představ. Ve 2. NP je balkon o rozměru 7m² orientovaný do zahrady. Výhodou je určitě i druhá stavba na pozemku, která je v současnosti využívaná částečně jako horní garáž. Dům má dispozici 5+kk, ale lze rozšířit o místnosti ve 2. NP i v suterénu domu. Díky výbornému umístění domu v obci jsou zde z oken pěkné výhledy na všechny světové strany. Pro lepší představu o dispozici a rozměrech interiéru, jsou součástí prezentace v inzerci i půdorysy a vizualizace.
Užitná plocha: 151m²
Plocha půdních prostor, které jsou v úrovni pokojů, lze využít jako další obytné místnosti 2. NP : 40m²
Sklep: 75,4m²
balkon ve 2. NP: 7m²
Pozemek:
Pozemek o rozměru 1173m² leží ve svahu a proto jsou zde krásné výhledy do krajiny. Na pozemku se nachází hlavní budova, přístavba a spodní garáž. K přístavbě, kde je horní garáž, se vjíždí horní bránou po nezpevněné cestě. Pro lepší představu o situaci pozemku jsou přiloženy v prezentaci fotografie z dronu.
Okolí a poloha:
Dalečín je vyhledávaným rekreačním místem, pro svou nádhernou přírodu, sportovní a relaxační vyžití. Přímo v obci je sjezdovka. V okolí se nachází turistické a běžkařské trasy. Bystřice nad Pernštejnem je vzdálená 10km. V těsné blízkosti je Vírská přehrada.
Celkový dojem:
Je pro vás příroda a čerstvý vzduch až na prvním místě? Hledáte klid a odpočinek od většího města? Dům je pochopitelně vhodný pro svou ideální polohu nejen k bydlení, ale i jako rekreační objekt. Dům nabízí spoustu možností k realizaci vašich snů.
Dům je ihned volný a prohlídky, které určitě doporučujeme, jsou možné po domluvě.
- Číslo zakázky
- IDNES-02667
- Cena
- 3 950 000 Kč Spočítat hypotéku
- Konstrukce budovy
- cihlová
- Stav budovy
- udržovaný
- Poloha domu
- samostatný
- Plocha pozemku
- 1173 m2
- Užitná plocha
- 151 m2
- Počet místností
- 5
- Sklep
- Parkování
- garáž
- Internet
- Plyn
- zaveden
- Topení
- ústřední - plynové
- Elektřina
- 230V
- Voda
- veřejný
- Odpad
- veřejná kanalizace
- PENB
- G (vyhl. č. 264/2020 Sb.)
- Spočítej stěhování
-
Nemůžete najít tu správnou nemovitost ke koupi? Zadejte si poptávku. Rádi Vám s hledáním pomůžeme.
Realitní novinky
Při realitním obchodu nechte nemovitost prověřit a prodávat profesionály
29.10.2025 23:00 Komerční sdělení
Nápady volebních programů na regulaci realitního trhu
09.10.2025 07:36 Komerční sdělení
Jak na rekonstrukci bytu, který chcete pronajímat
01.10.2025 11:16 Komerční sdělení
Investiční příležitost: Rekreační areál u Hluboké nad Vltavou míří mezi nejatraktivnější projekty v ČR
17.09.2025 10:15 Komerční sdělení
Chytrá domácnost pro každého: 5 dostupných gadgetů, které usnadní život
04.09.2025 15:09 Komerční sdělení