Prodej domu 180 m² s pozemkem 1 110 m²
Dlouhá, Horní Beřkovice, okres Litoměřice
5 990 000 Kč
4 500 000 Kč
Chci spočítat hypotéku
Prodej rodinného domu 180 m², pozemek 1110 m²
Společnost FÉR REALITY vám exluzivně zprostředkuje prodej rodinného domu s obytným podkrovím a rovinatým pozemkem v obci Horní Beřkovice ve velmi klidné ulici Dlouhá. Poloha nemovitosti zaručuje zároveň klidné i lukrativní bydlení s dostupností veškerých služeb. Vzhledem k dispozičnímu řešení je dům vhodný pro rodinné bydlení a k rekonstrukci dle vlastních představ.
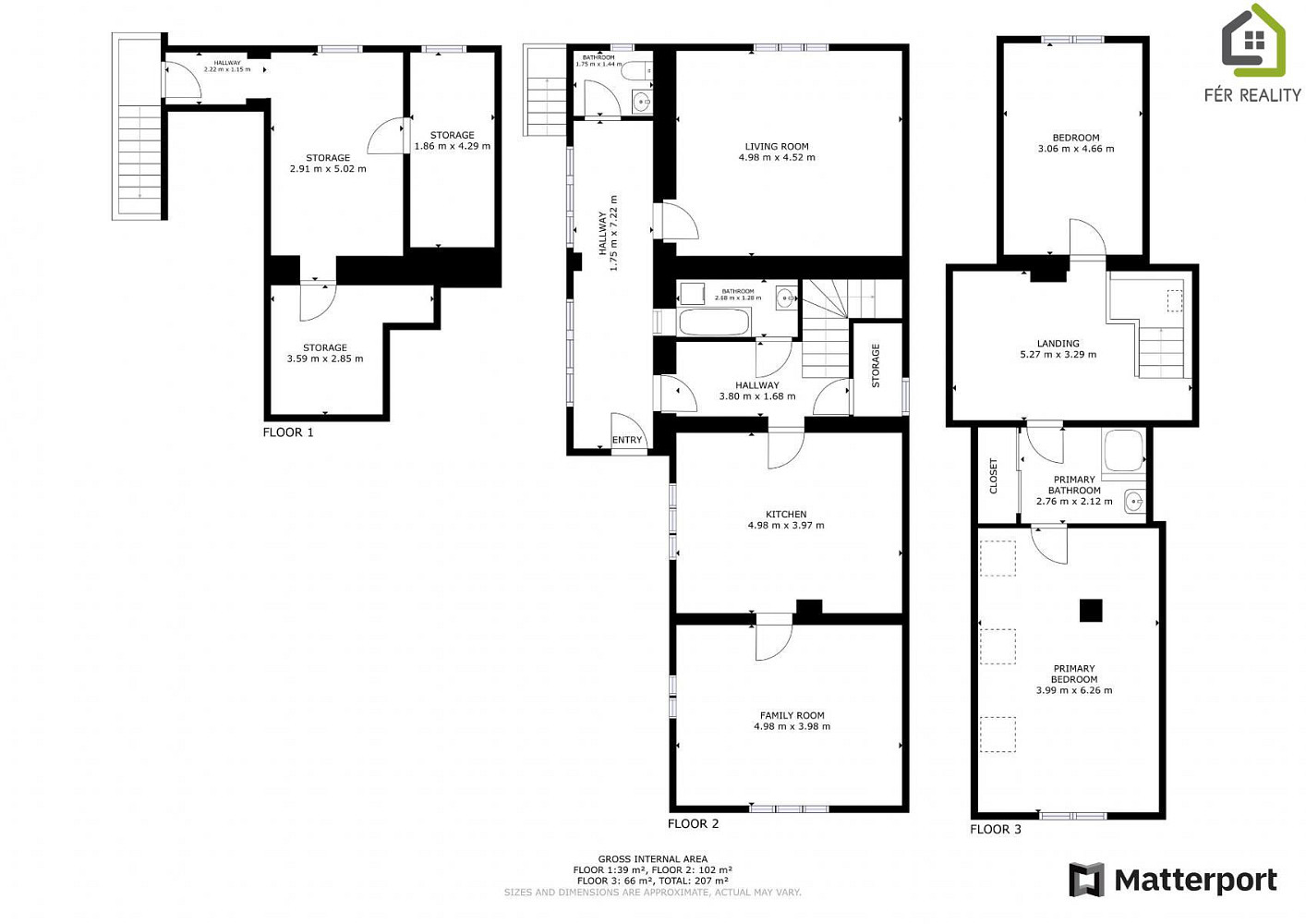
Dům je o dispozici 4+1+garáž s celkovou zastavěnou plochou 146 m² (RD 124 m², garáž 22 m²). Pozemek se zastavěnou částí měří 1110 m² a užitná plocha je 180 m². Rodinný dům je téměř z poloviny podsklepen. Přístup k nemovitosti je po zpevněné obecní komunikaci s vjezdem do garáže a přímo na pozemek.
Nemovitost je před rekonstrukcí. Základem je plná pálená cihla, strop nad suterénem betonový, v 1. NP dřevěný trámový, sedlová střecha, střešní krytina pálená taška, okna dřevěná špaletová. Podlahové krytiny jsou kombinací dřevěných prken, teraca a keramiky. Další stavbou na pozemku je přízemní zděná garáž s plochou střechou.
V 1. NP nalezneme verandu, chodbu, schodiště, kuchyni, obývací pokoj, ložnici, spíž, koupelnu a samostatnou toaletu. Ve 2. NP (podkroví) jsou dva pokoje, hala a šatna/koupelna. V 1. PP je zádveří, kotelna a dva sklepy.
Topení je ústřední a je zajištěno plynovým kotlem, ohřev vody bojlerem. Dům je napojen na elektřinu, plyn a vodovodní řád. Kanalizační přípojka je přivedena na pozemek.
Mezi občanskou vybavenost patří například školka, školka, knihovna, obchod s potravinami, sportoviště a jiné služby. V rámci servisu realitní kanceláře Vám rádi pomůžeme s financováním. V případě dotazů kontaktujte makléře nemovitosti.
- Číslo zakázky
- IDNES-416
- Cena
- 4 500 000 Kč Spočítat hypotéku
- Konstrukce budovy
- cihlová
- Stav budovy
- před rekonstrukcí
- Vlastnictví
- osobní
- Poloha domu
- samostatný
- Plocha pozemku
- 1110 m2
- Zastavěná plocha
- 146 m2
- Užitná plocha
- 180 m2
- Plocha zahrady
- 964 m2
- Počet podlaží
- 2 podlaží
- Vybavení domu
- nezařízený
- PENB
- G (vyhl. č. 78/2013 Sb.)
- Spočítej stěhování
-
Nemůžete najít tu správnou nemovitost ke koupi? Zadejte si poptávku. Rádi Vám s hledáním pomůžeme.
Realitní novinky
Při realitním obchodu nechte nemovitost prověřit a prodávat profesionály
29.10.2025 23:00 Komerční sdělení
Nápady volebních programů na regulaci realitního trhu
09.10.2025 07:36 Komerční sdělení
Jak na rekonstrukci bytu, který chcete pronajímat
01.10.2025 11:16 Komerční sdělení
Investiční příležitost: Rekreační areál u Hluboké nad Vltavou míří mezi nejatraktivnější projekty v ČR
17.09.2025 10:15 Komerční sdělení
Chytrá domácnost pro každého: 5 dostupných gadgetů, které usnadní život
04.09.2025 15:09 Komerční sdělení