Prodej domu 94 m² s pozemkem 870 m²
Kamenná, okres Šumperk
2 990 000 Kč
2 790 000 Kč
Chci spočítat hypotéku
Prodej rodinného domu 94 m², pozemek 870 m² Kamenná
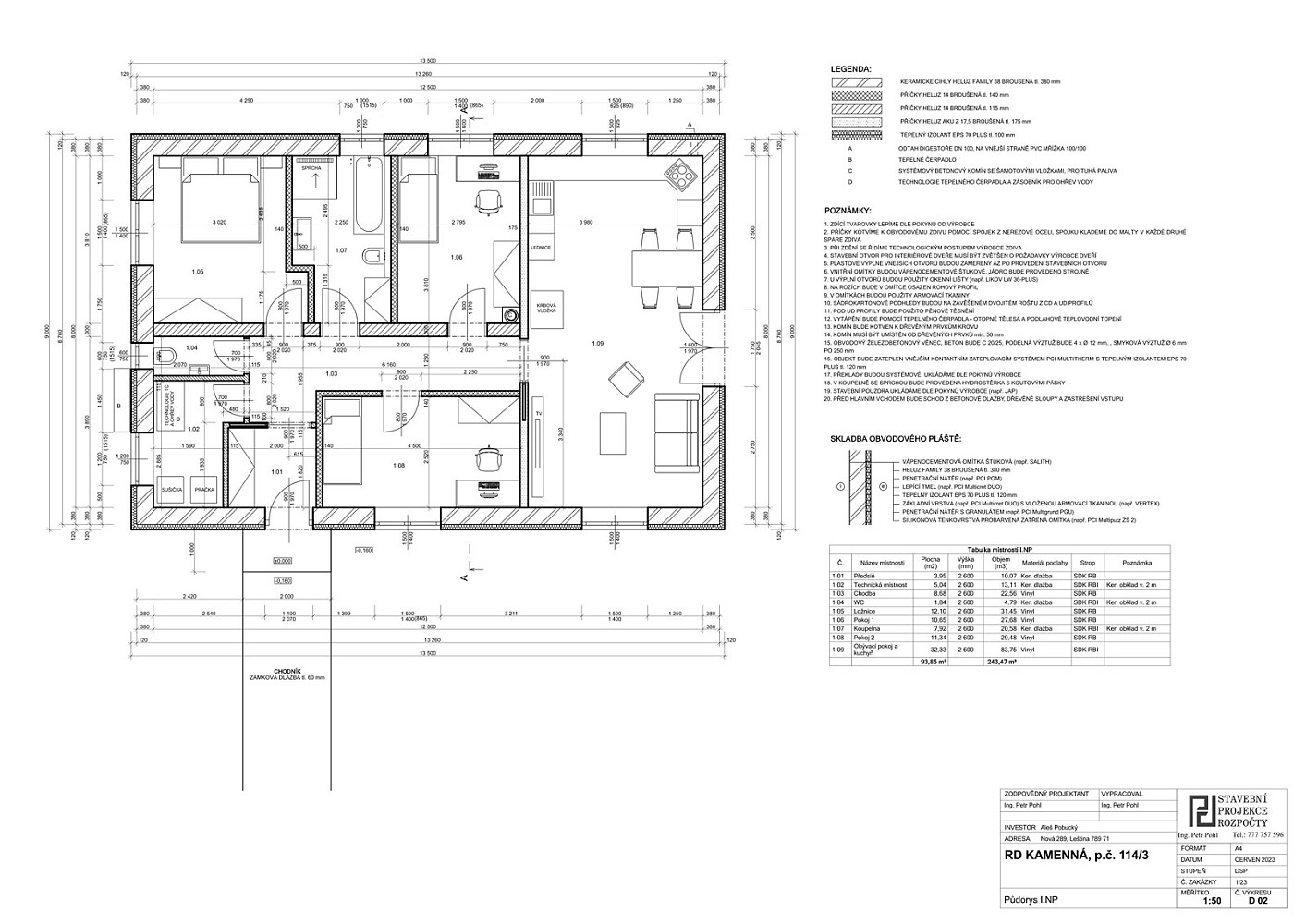
Nabízíme k prodeji hrubou stavbu stojící na pozemku o velikosti 870m² v malebné obci Kamenná, nacházející se v okrese Šumperk. Stavba RD dle projektové dokumentace bude jednopodlažní, nepodsklepená, se sedlovou střechou. Pozemek je připojen k obecní kanalizaci a pro zajištění vody bude sloužit vlastní studna na kterou je vypracována kompletní projektová dokumentace.
Hrubá stavba má sedlovou střechu s krytinou z taškoplechu, je osazena kvalitními plastovými dveřmi a okny s trojsklem. V domě jsou již nainstalovány rastry na SDK a zatepleno minerální vatou.
V případě zájmu vám rádi zašleme kompletní projektovou dokumentaci k náhledu.
Obec Kamenná nabízí veškerou potřebnou občanskou vybavenost, včetně obchodu s potravinami, mateřské a základní školy, fotbalového a dětského hřiště, hostince a kulturního domu pro různé společenské akce. V blízkosti pozemku se nachází zastávka autobusu, což zajišťuje snadnou dostupnost veřejné dopravy. Okolí obce Kamenná je bohaté na cyklostezky a nabízí možnost vycházek do přírody, včetně nedalekého skalního útvaru Bradlo.
Obec Kamenná je situována 13km od města Zábřeh a 12km od města Šumperk, což zaručuje klidné bydlení v blízkosti městského ruchu. Tato nabídka je ideální pro ty, kteří hledají klidné a příjemné bydlení v malebném prostředí s dobrou dostupností veškeré občanské vybavenosti.
V případě zájmu je majitel schopen Vám zajistit jakékoliv stavební práce a popřípadě i kompletní dostavbu domu na klíč.
V případě zájmu o prohlídku mě prosím neváhejte kontaktovat.
- Číslo zakázky
- IDNES-0003
- Cena
- 2 790 000 Kč Spočítat hypotéku
- Konstrukce budovy
- cihlová
- Stav budovy
- dobrý stav
- Poloha domu
- samostatný
- Lokalita projektu
- klidná část
- Plocha pozemku
- 870 m2
- Zastavěná plocha
- 121 m2
- Užitná plocha
- 94 m2
- Počet místností
- 4
- Vybavení domu
- nezařízený
- PENB
- A (vyhl. č. 264/2020 Sb.)
- Spočítej stěhování
-
Nemůžete najít tu správnou nemovitost ke koupi? Zadejte si poptávku. Rádi Vám s hledáním pomůžeme.
Realitní novinky
Při realitním obchodu nechte nemovitost prověřit a prodávat profesionály
29.10.2025 23:00 Komerční sdělení
Nápady volebních programů na regulaci realitního trhu
09.10.2025 07:36 Komerční sdělení
Jak na rekonstrukci bytu, který chcete pronajímat
01.10.2025 11:16 Komerční sdělení
Investiční příležitost: Rekreační areál u Hluboké nad Vltavou míří mezi nejatraktivnější projekty v ČR
17.09.2025 10:15 Komerční sdělení
Chytrá domácnost pro každého: 5 dostupných gadgetů, které usnadní život
04.09.2025 15:09 Komerční sdělení