Prodej domu 200 m² s pozemkem 225 m²
Dlouhá, Kaplice, okres Český Krumlov
2 999 000 Kč Chci spočítat hypotéku
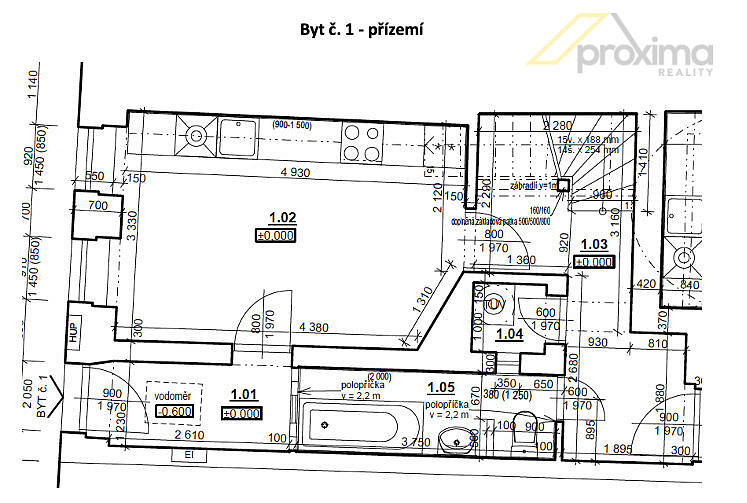
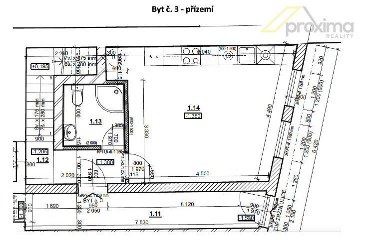
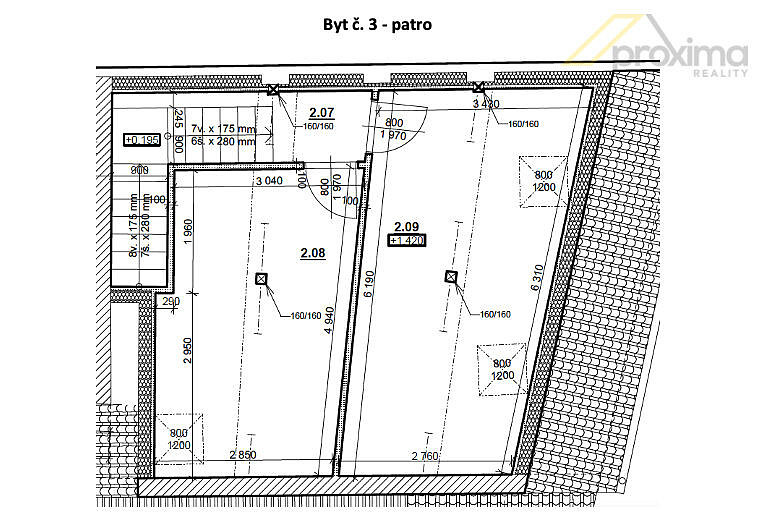
Prodej domu pro tři bytové jednotky, ul. Dlouhá, Kaplice
Proxima Reality, s. r. o. nabízí řadový dům v historické zástavbě jen pár kroků od centra Kaplice.
Jedná se o objekt s částečným podkrovím ze smíšeného kamenného a cihelného zdiva. Byla započata rekonstrukce dle platného stavebního povolení pro vznik tří samostatných jednotek: 1× byt 3+1, 2× byt 3+kk. Byt z ulice Dlouhá je ve fázi hrubé stavby.
Byt v patře je nově vyzděný, jedná se o hrubou stavbu. Ve stodole je možné parkovat nebo využít jako skladovací prostor či dílnu. Přístup a příjezd je zajištěn z veřejných komunikací. Napojení objektu na inženýrské sítě je řešeno na městské a veřejné sítě (elektřina, plyn, voda, kanalizace).
Nemovitost má skvělou polohu v historickém centru Kaplice – veškerá občanská vybavenost doslova za rohem. Je zde možnost dokončit rekonstrukci podle vlastních představ.
- Číslo zakázky
- IDNES-N00237
- Cena
- 2 999 000 Kč Spočítat hypotéku
- Konstrukce budovy
- smíšená
- Stav budovy
- před rekonstrukcí
- Vlastnictví
- osobní
- Poloha domu
- řadový
- Plocha pozemku
- 225 m2
- Zastavěná plocha
- 225 m2
- Užitná plocha
- 200 m2
- Počet podlaží
- 2 podlaží
- Plyn
- veřejný přívod
- Elektřina
- 230V
- Odpad
- veřejná kanalizace
- PENB
- G (vyhl. č. 264/2020 Sb.)
- Spočítej stěhování
-
Nemůžete najít tu správnou nemovitost ke koupi? Zadejte si poptávku. Rádi Vám s hledáním pomůžeme.
Realitní novinky
Při realitním obchodu nechte nemovitost prověřit a prodávat profesionály
29.10.2025 23:00 Komerční sdělení
Nápady volebních programů na regulaci realitního trhu
09.10.2025 07:36 Komerční sdělení
Jak na rekonstrukci bytu, který chcete pronajímat
01.10.2025 11:16 Komerční sdělení
Investiční příležitost: Rekreační areál u Hluboké nad Vltavou míří mezi nejatraktivnější projekty v ČR
17.09.2025 10:15 Komerční sdělení
Chytrá domácnost pro každého: 5 dostupných gadgetů, které usnadní život
04.09.2025 15:09 Komerční sdělení