Prodej domu 238 m²
Libina, okres Šumperk
5 349 000 Kč
4 250 000 Kč
Chci spočítat hypotéku
Prodej rodinného domu na adrese Libina 306, 788 05 Libina
Nabízíme k prodeji exkluzivní rodinný dům v Libině
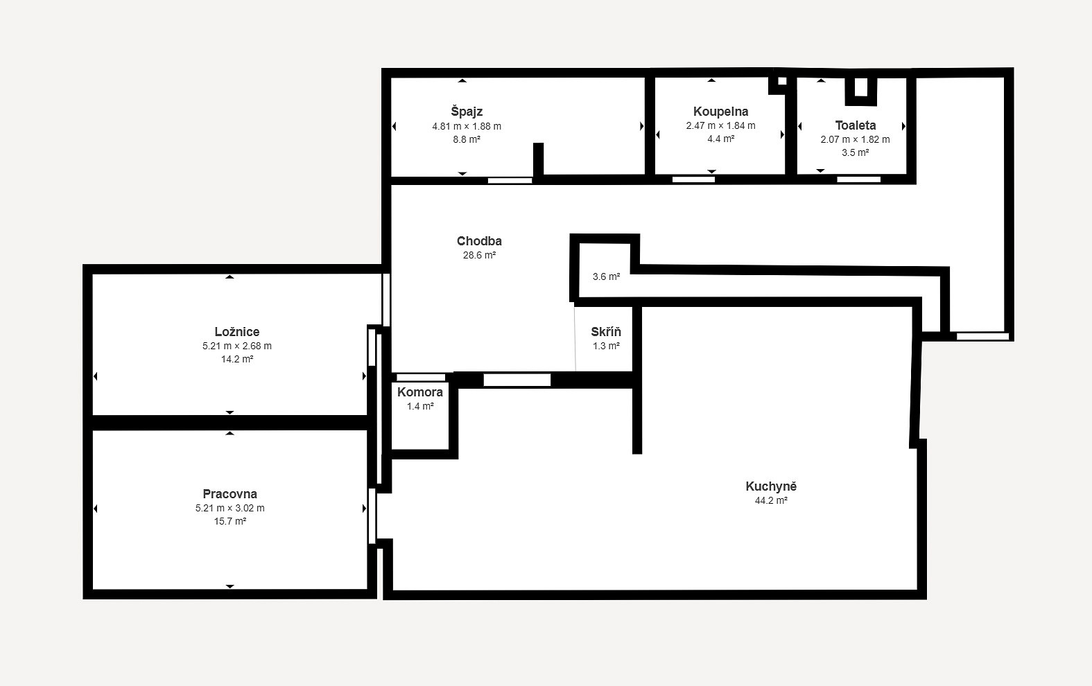
Tento jedinečný objekt se zastavěnou plochou 166 m² se nachází na rozlehlém pozemku o velikosti 548 m² a zahrnuje i zděnou garáž (dílnu) o celkové ploše 51 m², což z něj činí ideální místo pro rodinný život i pracovní aktivity.
Dům je navržen pro maximální pohodlí a komfort. Po vstupu vás přivítá prostorná chodba se schodištěm, která se elegantně propojuje s hlavními obytnými prostorami. V přízemí najdete toaletu s technickým zázemím, koupelnu se sprchovým koutem, útulnou kuchyň s jídelnou a obývací pokoj, který je ideální pro rodinné chvíle strávené společně. K dispozici jsou také ložnice a další pokoj, které nabízejí dostatek soukromí.
V patře se nachází další tři pokoje, toaleta a koupelna, opět se sprchovým koutem. Tento prostor zahrnuje také kuchyň s jídelnou a obývací pokoj, což zajišťuje dostatek místa pro pohodlné a příjemné bydlení.
Dům je vybaven účinným topným systémem, který kombinuje elektrický kotel a kotel na tuhá paliva. Ohřev vody je zajištěn elektrickým boilerem. Nemovitost je napojena na vodovod, kanalizaci a elektřinu, plyn je k dispozici v ulici, což poskytuje další možnosti pro využití.
Tato nemovitost se pyšní polohou pouhých 13 km od centra města Šumperk, kde naleznete veškerou občanskou vybavenost, včetně obchodů, škol a zdravotních zařízení.
Pro představu o reálném stavu domu je k dispozici virtuální prohlídka, která vám umožní procházet každý kout a měřit vzdálenosti. Navíc si můžete prohlédnout, jak vypadá nemovitost bez nábytku, což vám usnadní rozhodování.
Neváhejte nás kontaktovat pro více informací a domluvení prohlídky této jedinečné nabídky!
- Číslo zakázky
- IDNES-6
- Cena
- 4 250 000 Kč Spočítat hypotéku
- Vlastnictví
- osobní
- Užitná plocha
- 238 m2
- PENB
- G (vyhl. č. 78/2013 Sb.)
- Spočítej stěhování
-
Nemůžete najít tu správnou nemovitost ke koupi? Zadejte si poptávku. Rádi Vám s hledáním pomůžeme.
Realitní novinky
Jak navrhnout funkční a stylovou koupelnu v malém bytě?
11.11.2025 08:10 Komerční sdělení
Jak vybrat správnou výšku a šířku lešení
05.11.2025 16:19 Komerční sdělení
Při realitním obchodu nechte nemovitost prověřit a prodávat profesionály
29.10.2025 23:00 Komerční sdělení
Nápady volebních programů na regulaci realitního trhu
09.10.2025 07:36 Komerční sdělení
Jak na rekonstrukci bytu, který chcete pronajímat
01.10.2025 11:16 Komerční sdělení