Prodej domu 125 m² s pozemkem 491 m²
Žerotínova, Litovel, okres Olomouc
3 900 000 Kč
3 500 000 Kč
Chci spočítat hypotéku
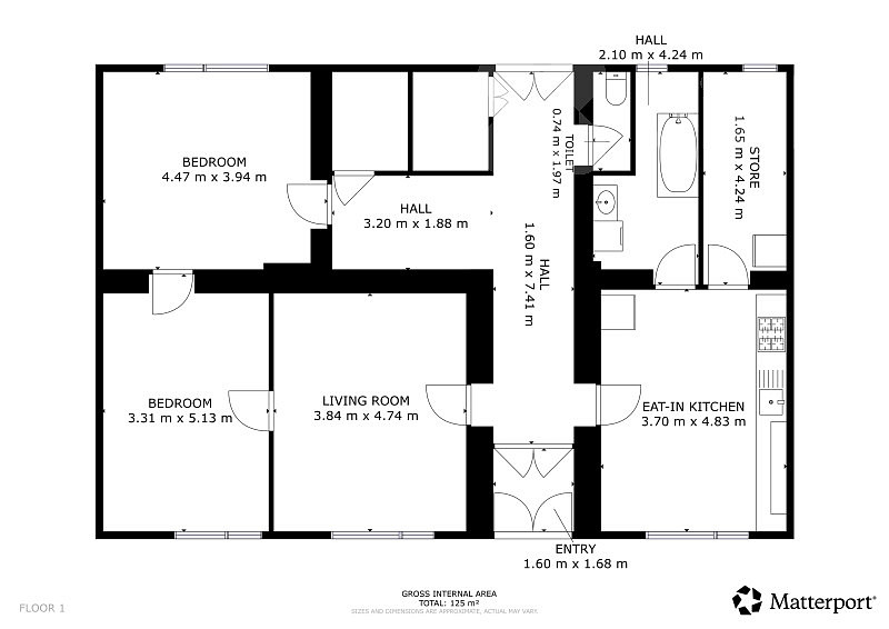
Prodej rodinného domu 3+1 v Litovli.
Nabízíme k prodeji přízemní cihlový, rodinný dům v klidné části města Litovel. Dům o dispozici 3+1 je součástí zástavby a nabízí komfortní bydlení s dobrou dostupností do Olomouce i Uničova.
Dispozice a vybavení:
Kuchyň s kombinovaným sporákem (napojení na plynovou bombu).
Koupelna s vanou, bojlerem, prostorem na pračku a umyvadlem. Samostatné WC. Praktická špajzka s oknem.
Prostorný obývací pokoj s francouzským oknem vedoucím na udržovanou zahradu. Dům je vytápěn elektrickými přímotopy a krbovými kamny. Dům má dva komíny (nevyvložkované). Elektrické rozvody jsou v mědi, nové jističe
Voda aktuálně ze studny, ale je možnost připojení na obecní vodovod. Plyn je zaveden v ulici, dům připojen na kanalizaci. Střecha je pokryta eternitovými šablonami. Půda vhodná pro uskladnění věcí. Vedlejší prostory: dílna, kůlna, skleník.
Výhody:
Bezbariérový přístup - celý dům je přízemní.
Klidná lokalita s dobrou občanskou vybaveností.
Udržovaná zahrada.
Výborná dopravní dostupnost do Olomouce i Uničova
Dům je vhodný jak k trvalému bydlení, tak i k rekreačním účelům. Ideální pro rodinu hledající klidné bydlení s možností vlastních úprav.
- Číslo zakázky
- IDNES-230140
- Cena
- 3 500 000 Kč Spočítat hypotéku
- Konstrukce budovy
- cihlová
- Stav budovy
- dobrý stav
- Vlastnictví
- osobní
- Poloha domu
- v bloku
- Přístupová komunikace
- asfalt
- Lokalita projektu
- centrum
- Plocha pozemku
- 491 m2
- Zastavěná plocha
- 142 m2
- Užitná plocha
- 125 m2
- Plocha zahrady
- 366 m2
- Počet podlaží
- 1 podlaží
- Topení
- lokální - tuhá paliva, lokální - elektrické
- Elektřina
- 230V, 230-400V
- Voda
- vlastní zdroj
- Odpad
- veřejná kanalizace
- Vybavení domu
- částečně zařízený
- Dopravní dostupnost
- železnice, silnice, autobus, dálnice
- Občanská vybavenost
- Škola, Školka, Zdravotnická zařízení, Pošta, Supermarket, Kompletní síť obchodů a služeb, Restaurace
- Datum nastěhování
- 30.10.2025
- PENB
- G (vyhl. č. 264/2020 Sb.)
- Bezbariérový přístup
- Spočítej stěhování
-
Nemůžete najít tu správnou nemovitost ke koupi? Zadejte si poptávku. Rádi Vám s hledáním pomůžeme.
Realitní novinky
Revoluce v advokátních úschovách realitních financí
13.11.2025 00:06 Komerční sdělení
Jak navrhnout funkční a stylovou koupelnu v malém bytě?
11.11.2025 08:10 Komerční sdělení
Jak vybrat správnou výšku a šířku lešení
05.11.2025 16:19 Komerční sdělení
Při realitním obchodu nechte nemovitost prověřit a prodávat profesionály
29.10.2025 23:00 Komerční sdělení
Nápady volebních programů na regulaci realitního trhu
09.10.2025 07:36 Komerční sdělení