Prodej domu 80 m² s pozemkem 482 m²
Ponětovská, Prace, okres Brno-venkov
3 950 000 Kč Chci spočítat hypotéku
PRODEJ DOMU 2+1, PONĚTOVSKÁ PRACE
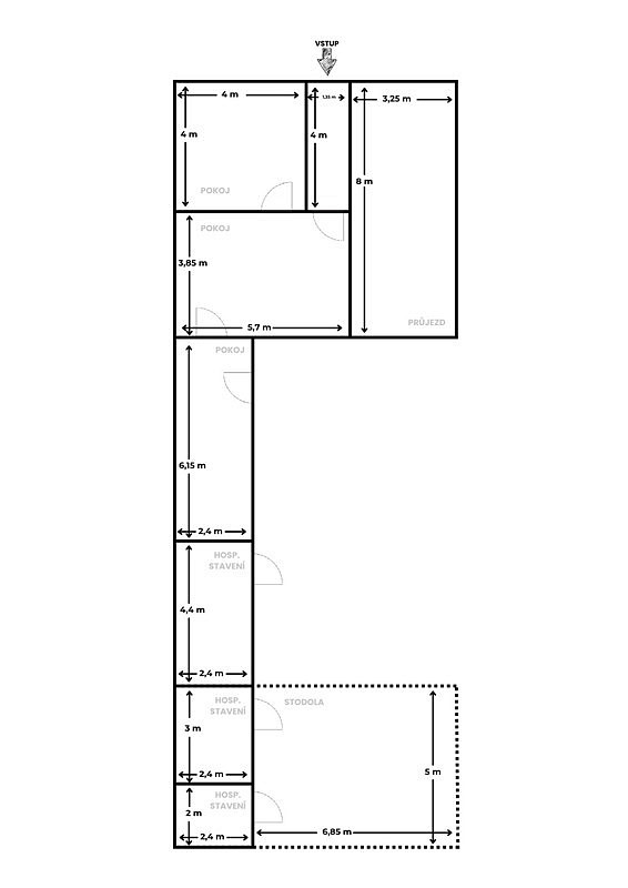
Dostatečná uliční šíře, zahrada se soukromím a možnost parkování na vlastním pozemku… To jsou základní parametry právě tohoto řadového rodinnému domu s dispozicí 2+1, který se nachází na ulici Ponětovská v obci Prace. Podlahová plocha domu činí přibližně 58 m², přičemž na hlavní stavbu navazují hospodářské přístavky o ploše cca 22,6 m² a otevřená stodola s výměrou 33,5 m². Hospodářské přístavky jsou částečně podsklepené. Celková plocha pozemku činí 482 m².
Dům je svým stavem určen ke generální rekonstrukci nebo demolici. Dle současného územního plánu lze u nové výstavby počítat s jedním nadzemním podlažím a obytným podkrovím. Dále je potřeba počítat se sedlovou střechou. Minimální poměr zeleně na pozemku musí činit 40 %.
Současná konstrukce domu je ze smíšeného zdiva a není zateplena. Základy jsou smíšené kamenné bez hydroizolací. Okna jsou původní – dřevěná kastlová. Na domě je v uliční části sedlová střecha a ve dvorní části pak pultová. Do domu je zavedena elektřina a je zde také zbudovaná přípojka k plynu (aktuálně odpojeno). Vodovodní a kanalizační řád je doveden do průjezdu domu. Přípojky do domu nejsou vybudovány. Na pozemku je dále studna na užitkovou vodu. Dispozice domu se skládá ze vstupní chodby a tří pokojů. V současném dispozičním řešení není koupelna ani WC.
Jak již bylo zmíněno v úvodu, hlavními přednostmi nemovitosti je zejména uliční šíře, která Vám umožní jednak parkovat více vozidel přímo na pozemku, ale zajistí také lepší obslužnost zahrady. Další devízou je bezesporu prostorná zahrada s dostatkem soukromí, na kterou se Vám bez větší námahy vejde i bazén a zbude dostatek místa pro drobné zahradničení. Pokud tedy právě hledáte nemovitost, která má zajímavý pozemek, dobrou uliční šíři a nebojíte se pustit do větší rekonstrukce či výstavby, pak by pro Vás tato možnost mohla být tou pravou. Nemovitost je k dispozici ihned, prohlídky jsou možné po předchozí telefonické dohodě.
- Číslo zakázky
- IDNES-969335
- Cena
- 3 950 000 Kč Spočítat hypotéku
- Konstrukce budovy
- smíšená
- Stav budovy
- před rekonstrukcí
- Vlastnictví
- osobní
- Poloha domu
- řadový
- Plocha pozemku
- 482 m2
- Zastavěná plocha
- 180 m2
- Užitná plocha
- 80 m2
- Plocha zahrady
- 302 m2
- Počet podlaží
- 1 podlaží
- Sklep
- Plyn
- zaveden
- Voda
- veřejný
- PENB
- G (vyhl. č. 264/2020 Sb.)
- Spočítej stěhování
-
Nemůžete najít tu správnou nemovitost ke koupi? Zadejte si poptávku. Rádi Vám s hledáním pomůžeme.
Realitní novinky
Nápady volebních programů na regulaci realitního trhu
09.10.2025 07:36 Komerční sdělení
Jak na rekonstrukci bytu, který chcete pronajímat
01.10.2025 11:16 Komerční sdělení
Investiční příležitost: Rekreační areál u Hluboké nad Vltavou míří mezi nejatraktivnější projekty v ČR
17.09.2025 10:15 Komerční sdělení
Chytrá domácnost pro každého: 5 dostupných gadgetů, které usnadní život
04.09.2025 15:09 Komerční sdělení
Italský nábytek Natuzzi Design: Luxus, který promění váš domov
28.08.2025 16:16 Komerční sdělení