Prodej domu 76 m² s pozemkem 802 m²
Staňkovice - Smilovice, okres Kutná Hora
2 900 000 Kč Chci spočítat hypotéku
Prodej rodinného domu 76 m², pozemek 802 m², Smilovice
Dobrý den,
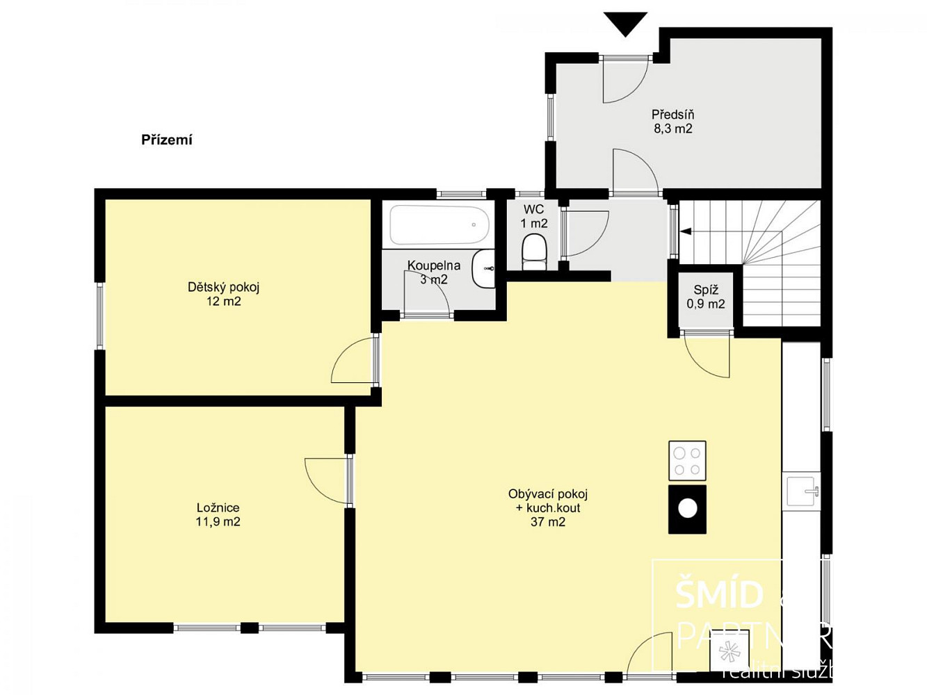
nabízíme k prodeji rodinný dům, dřevostavbu o užitné ploše 76 m² s prostorným sklepem 57 m² a pozemkem o výměře 802 m² v obci Smilovice, okres Kutná Hora. Dispozice 3+kk nabízí pohodlné bydlení a sklepní prostory umožňují rozšíření o další obytné místnosti.
Dům je vytápěn kotlem na tuhá paliva, voda je čerpána z vydatné studny a odpad je sveden do jímky. Pro úsporný provoz slouží také nádrž na dešťovou vodu. K prodeji bude připraveno povolení k připojení na obecní vodovod. Na pozemku jsou již osazeny sloupky pro budoucí jihovýchodní terasu a v rámci prodeje bude vybudován i nový pozvolný sjezd z pozemku.
Pozemek o velikosti 802 m² poskytuje dostatek prostoru pro zahradu, relaxaci i další případné úpravy. Dům je vhodný jak k trvalému bydlení, tak i k rekreaci díky klidnému prostředí a dobré dostupnosti služeb v nedalekých Uhlířských Janovicích, Sázavě, Ratajích nad Sázavou, nebo třeba Kutné Hoře.
Nemovitost lze financovat hypotečním úvěrem, s nímž vám rádi pomůžeme.
Uvedené m² jsou orientační.
Pokud Vás nabídka zaujala, neváhejte mě kontaktovat.
- Číslo zakázky
- IDNES-966
- Cena
- 2 900 000 Kč Spočítat hypotéku
- Konstrukce budovy
- dřevěná
- Stav budovy
- dobrý stav
- Vlastnictví
- osobní
- Poloha domu
- samostatný
- Plocha pozemku
- 802 m2
- Zastavěná plocha
- 91 m2
- Užitná plocha
- 76 m2
- Plocha zahrady
- 711 m2
- Počet podlaží
- 1 podlaží
- Počet podzemních podlaží
- 1 podlaží
- Sklep
- Internet
- Vybavení domu
- zařízený
- PENB
- G (vyhl. č. 78/2013 Sb.)
- Spočítej stěhování
-
Nemůžete najít tu správnou nemovitost ke koupi? Zadejte si poptávku. Rádi Vám s hledáním pomůžeme.
Realitní novinky
Revoluce v advokátních úschovách realitních financí
13.11.2025 00:06 Komerční sdělení
Jak navrhnout funkční a stylovou koupelnu v malém bytě?
11.11.2025 08:10 Komerční sdělení
Jak vybrat správnou výšku a šířku lešení
05.11.2025 16:19 Komerční sdělení
Při realitním obchodu nechte nemovitost prověřit a prodávat profesionály
29.10.2025 23:00 Komerční sdělení
Nápady volebních programů na regulaci realitního trhu
09.10.2025 07:36 Komerční sdělení