Prodej domu 164 m² s pozemkem 1 014 m²
Teplice nad Metují, okres Náchod
4 193 600 Kč Chci spočítat hypotéku
Prodej Chalupa, 164m², Teplice nad Metují
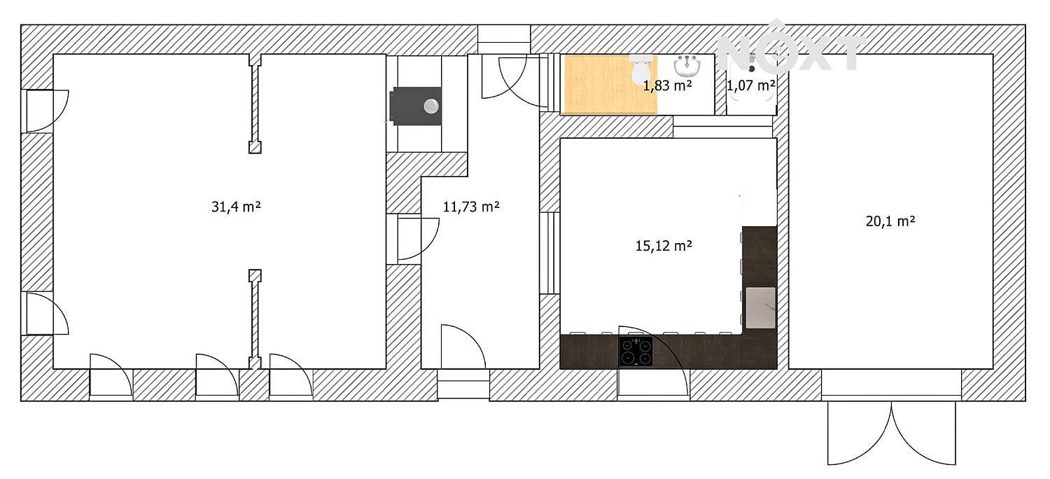
Hledáte chalupu na rekreaci nebo potenciální investici? Nabízíme k prodeji rodinný dům s užitnou plochou 164 m² v obci Bučnice, pouhé 1,5 km od nádherného Adršpašsko-Teplického skalního města. V této nemovitosti probíhaly jen drobné rekonstrukční práce, střešní krytina byla měněna přibližně před 15 lety. Je zde ale vypracovaný projekt na celkovou rekonstrukci s přístavbou s platným stavebním povolením.
Doporučujeme prohlídku.
- Číslo zakázky
- IDNES-N112681
- Cena
- 4 193 600 Kč Spočítat hypotéku
- Konstrukce budovy
- smíšená
- Stav budovy
- dobrý stav
- Poloha domu
- samostatný
- Lokalita projektu
- klidná část
- Plocha pozemku
- 1014 m2
- Zastavěná plocha
- 122 m2
- Užitná plocha
- 164 m2
- Plocha zahrady
- 892 m2
- Vybavení domu
- nezařízený
- PENB
- G (vyhl. č. 78/2013 Sb.)
- Bezbariérový přístup
- Spočítej stěhování
-
Nemůžete najít tu správnou nemovitost ke koupi? Zadejte si poptávku. Rádi Vám s hledáním pomůžeme.
Realitní novinky
Při realitním obchodu nechte nemovitost prověřit a prodávat profesionály
29.10.2025 23:00 Komerční sdělení
Nápady volebních programů na regulaci realitního trhu
09.10.2025 07:36 Komerční sdělení
Jak na rekonstrukci bytu, který chcete pronajímat
01.10.2025 11:16 Komerční sdělení
Investiční příležitost: Rekreační areál u Hluboké nad Vltavou míří mezi nejatraktivnější projekty v ČR
17.09.2025 10:15 Komerční sdělení
Chytrá domácnost pro každého: 5 dostupných gadgetů, které usnadní život
04.09.2025 15:09 Komerční sdělení