Prodej domu 145 m² s pozemkem 708 m²
Husova, Vejprty, okres Chomutov
5 300 000 Kč
4 999 000 Kč
Chci spočítat hypotéku
Prodej zrekonstruovaného domu s prostornou zahradou v Krušných horách, 10 minut od Klínovce
Exkluzivně vám nabízíme patrový dům ideální pro rodinu s dětmi se zahradou ve Vejprtech, ulice Husova.
Patrový dům s parkovacími místy a garáží poskytuje ideální místo k bydlení pro celou rodinu. Se zastavěnou plochou 112 m² domu a užitnou plochou 145 m² nabízí dostatek prostoru pro vaše bydlení.
Pozemek je členěn na dvě části s rovinatým i svažitým terénem o rozloze 547 m² a poskytne vám i dětem dostatek místa a zároveň pobyt na čerstvém horském vzduchu.
V přízemí domu je vstupní chodba s WC, zádveří se samostatně průchozí kuchyní, obývacím pokojem a ložnicí. Z kuchyně se dostanete do jídelny a na zahradu. Za obývacím pokojem je vstup do menší "zimní zahrady". Celková plocha přízemí činí 92 m².
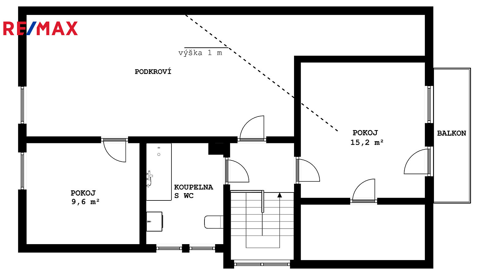
V patře je koupelna, pokoj s balkónem a dvě podkrovní místnosti o užitné ploše 53 m².
Ve sklepě je pračka a bojler, kotel na tuhá paliva, spižírna a komora na uhlí.
V rámci obce máte vše na dosah, ať už se jedná o základní nebo mateřskou školu, poštu, obchody a restaurace. Dopravní dostupnost je na výborné úrovni i v zimě. Ski areál Klínovec je vzdálen pouhých 10 minut autem.
Zateplený dům s novou střešní krytinou a plastovými okny je ve velmi dobrém stavu a bez nutnosti rekonstrukcí máte možnost ihned spokojeně bydlet.
Vytápění zajišťuje kotel na tuhá paliva se zásobníkem, který vám zajistí teplo na 5 dní po doplnění. Dům je také vybaven kamerovým systémem a alarmem.
Pro rodiny hledající bydlení na horách s důrazem na dostatek prostoru je tato nemovitost ideální volbou.
S financováním vám pomůže naše hypoteční specialistka. Doporučuji osobní prohlídku.
- Číslo zakázky
- IDNES-032-NP08954
- Cena
- 4 999 000 Kč Spočítat hypotéku
- Konstrukce budovy
- smíšená
- Stav budovy
- dobrý stav
- Poloha domu
- samostatný
- Přístupová komunikace
- asfalt
- Lokalita projektu
- klidná část
- Kolaudace
- 1945
- Plocha pozemku
- 708 m2
- Zastavěná plocha
- 112 m2
- Užitná plocha
- 145 m2
- Plocha zahrady
- 547 m2
- Počet podlaží
- 2 podlaží
- Počet podzemních podlaží
- 1 podlaží
- Počet místností
- 5
- Parkování
- parkovací místo
- Internet
- Elektřina
- 230V
- Odpad
- septik / jímka
- Vybavení domu
- zařízený
- PENB
- G (vyhl. č. 264/2020 Sb.)
- Spočítej stěhování
-
Nemůžete najít tu správnou nemovitost ke koupi? Zadejte si poptávku. Rádi Vám s hledáním pomůžeme.
Realitní novinky
Revoluce v advokátních úschovách realitních financí
13.11.2025 00:06 Komerční sdělení
Jak navrhnout funkční a stylovou koupelnu v malém bytě?
11.11.2025 08:10 Komerční sdělení
Jak vybrat správnou výšku a šířku lešení
05.11.2025 16:19 Komerční sdělení
Při realitním obchodu nechte nemovitost prověřit a prodávat profesionály
29.10.2025 23:00 Komerční sdělení
Nápady volebních programů na regulaci realitního trhu
09.10.2025 07:36 Komerční sdělení