Prodej domu 108 m² s pozemkem 305 m²
Velká Buková, okres Rakovník
4 800 000 Kč Chci spočítat hypotéku
Prodej rodinného domu (chalupy) v Roztokách, okres Rakovník.
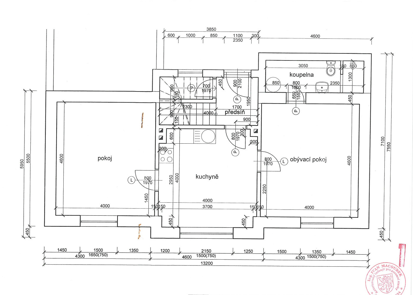
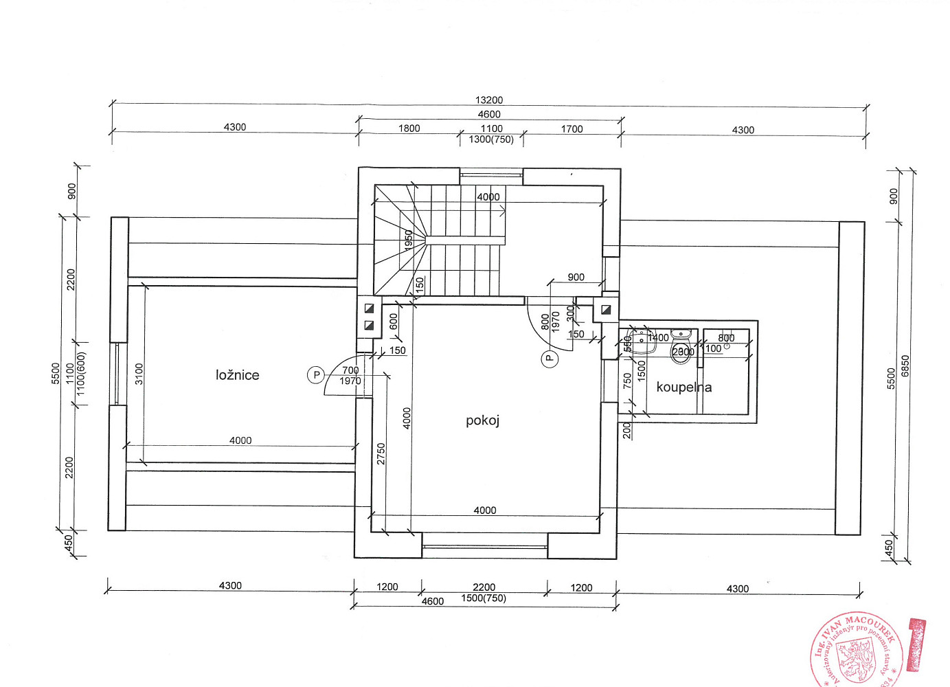
Dovolujeme si Vám nabídnout k prodeji malebný rodinný dům v srdci CHKO Křivoklátsko, v obci Roztoky, okres Rakovník (administrativně dům spadá pod obec Velká Buková). Jedná se o zděný, nepodsklepený, samostatně stojící objekt s jedním nadzemním podlažím a obytným podkrovím s dispozicí místností 4+1 (viz půdorysy ve fotogalerii). Celková podlahová plocha činí 108 m². Celková výměra pozemku činí 305 m². Dále je také možné užívat část přilehlého pozemku (cca 90 m²) ve vlastnictví Lesů ČR. Dům prošel před časem (cca 20 let) rekonstrukcí a přestavbou. Byla vybudována koupelna v přízemí, provedena nová střecha a vyměněna okna za stávající plastová. Ve větší části přízemí je nová dřevěná podlaha. Objekt je napojen na elektřinu a obecní vodovod, který je veden ze sousední základní školy. Odpadní vody jsou svedeny do jímky. Vytápění je kombinované kamny na tuhá paliva a elektrickými přímotopy.
Dům je ideální volbou pro všechny, kteří hledají klidné a příjemné místo pro život či rekreaci v přírodě, a přitom s dobrou dostupností do měst (Beroun 25 km, Praha 40 km). Bezprostřední okolí láká k výletům a outdoorovým aktivitám turisty, cyklisty nebo rybáře ( Hrad Křivoklát 1 km, řeka Berounka 100 m). Občanská vybavenost je také skvěle dostupná. ZŠ a MŠ přes ulici, obchody, restaurace a veřejná doprava v obci Roztoky, případně Křivoklát.
Pro více informací či domluvení prohlídky mne prosím neváhejte kontaktovat.
- Číslo zakázky
- IDNES-ROZ_01
- Cena
- 4 800 000 Kč Spočítat hypotéku
- Konstrukce budovy
- cihlová
- Stav budovy
- dobrý stav
- Vlastnictví
- osobní
- Poloha domu
- samostatný
- Plocha pozemku
- 305 m2
- Užitná plocha
- 108 m2
- Počet podlaží
- 2 podlaží
- Počet místností
- 5
- Plyn
- nezaveden
- Topné těleso
- přímotop, kamna
- Zdroj vytápění
- přímotop, kamna
- Zdroj ohřevu vody
- elektrokotel
- Elektřina
- zavedena
- Voda
- veřejný
- Odpad
- veřejná kanalizace
- Datum nastěhování
- 10.09.2025
- PENB
- G (vyhl. č. 264/2020 Sb.)
- Spočítej stěhování
-
Nemůžete najít tu správnou nemovitost ke koupi? Zadejte si poptávku. Rádi Vám s hledáním pomůžeme.
Realitní novinky
Při realitním obchodu nechte nemovitost prověřit a prodávat profesionály
29.10.2025 23:00 Komerční sdělení
Nápady volebních programů na regulaci realitního trhu
09.10.2025 07:36 Komerční sdělení
Jak na rekonstrukci bytu, který chcete pronajímat
01.10.2025 11:16 Komerční sdělení
Investiční příležitost: Rekreační areál u Hluboké nad Vltavou míří mezi nejatraktivnější projekty v ČR
17.09.2025 10:15 Komerční sdělení
Chytrá domácnost pro každého: 5 dostupných gadgetů, které usnadní život
04.09.2025 15:09 Komerční sdělení