Prodej ubytovacího objektu 1 350 m²
Želetava, okres Třebíč
Cena na vyžádání
Exkluzivní prodej rodinného penzionu - Pacherův Mlýn Želetava
V exkluzivním zastoupení majitele si Vám dovolujeme nabídnout ke koupi útulný rodinný penzion Pacherův mlýn, který leží v malebném kraji na rozhraní jižních Čech a Vysočiny, mezi historickými městy Třebíč a Telč. Nemovitost se nachází v neskutečně krásné přírodě obklopena lesy a rybníkem.
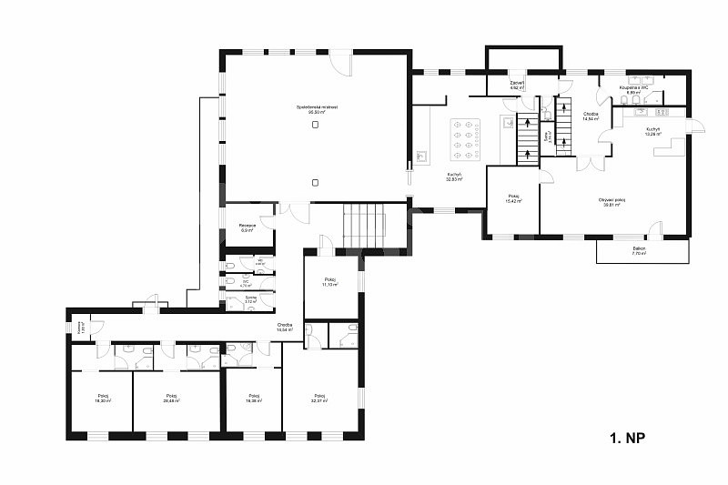
Penzion s orientační užitnou plochou 1350 m² má k dispozici 14 dvou až čtyřlůžkových pokojů s možností dalších přistýlek. Každý pokoj má vlastní sociální zařízení (sprchový kout, umyvadlo a toaletu). Na chodbě jsou dva sklady, dvě toalety a posezení pro hosty.
V přízemí se nachází prostorná restaurace s kapacitou až 70 míst, funkční kuchyně (dvojitý plynový sporák s osmi hořáky, dvě trouby, nerezová linka, umyvadlo, velký nerezový dvou dřez, myčka, dva velké mrazáky, lednice, dvě kuchyňské linky a zázemí).
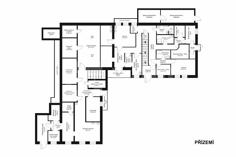
V suterénu byla původně prosperující výrobna lahůdek a uzenin, zkolaudována k výrobě r. 2007 a plně funkční do roku 2014. Je zde technické zázemí, velká funkční elektrická udírna s kapacitou 300 kg zn. Mauting UKM 1701. E 2016, dva prostorné chladící boxy, kancelář, kotelna, elektrický bojler, plynový ohřívač John Wood, nejmodernější kotel na dřevo Blaze Harmony 30kW, sociální zázemí a tepelné čerpadlo vzduch vzduch, které je momentálně odpojeno.
Celý prostor je kompletně obložen kachličkami. Disponuje čtyřmi vstupy.
V mezipatře je dílna se samostatným vstupem.
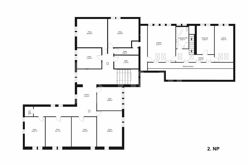
Součástí prodeje jsou i dvě bytové jednotky. Zrekonstruovaný mezonetový byt 5+kk o výměře cca 185 m² se slunnou terasou cca 70 m² a byt v přízemí 2+kk cca 55 m² se vstupem na zahradu, ve kterém momentálně probíhá rekonstrukce.
Celý objekt je napojen na plyn, vlastní vodárnu, bio čističku od výrobce EKOPLAST TELČ s. r. o., elektřinu a FVE o kapacitě dvou síťových měničů 19,6 kW.
K nemovitosti náleží rozsáhlé pozemky, na kterých se nachází tenisový kurt, volejbalové hřiště, malé fotbalové hřiště, dřevěný kulatý altán pro 35 osob k sezení, ohniště, místo pro grilování, dvě garáže a parkoviště pro 30 automobilů.
Dále na pozemku stojí vlastní vodárna s vrtem o hloubce 22 m a šířce 40 cm. K nemovitosti vedou dvě příjezdové asfaltové komunikace.
Pacherův mlýn leží na břehu Panského rybníku 2 km od obce Želetava a jeho historie sahá do 15. stol. do období Maltézských rytířů. Jeho romantická poloha je vhodná pro rodinné výlety, rekreace, firemní setkání, svatby a různé společenské události. Okolí je vhodné pro cykloturistiku i pěší túry.
Kupní cena k jednání.
Více informací Vám poskytne realitní specialista
- Číslo zakázky
- IDNES-224431
- Cena
- Cena na vyžádání
- Konstrukce budovy
- cihlová
- Stav budovy
- velmi dobrý stav
- Vlastnictví
- osobní
- Typ komerční nemovitosti
- ubytovací objekty
- Přístupová komunikace
- asfalt
- Lokalita projektu
- samota
- Plocha pozemku
- 20868 m2
- Zastavěná plocha
- 500 m2
- Užitná plocha
- 1350 m2
- Počet podlaží
- 3
- Počet lůžek
- 40
- Počet parkovacích míst
- 35
- Plyn
- zaveden
- Topení
- lokální - tuhá paliva, ústřední - plynové, ústřední - tuhá paliva
- Elektřina
- 230V, 230-400V
- Voda
- vlastní zdroj
- Odpad
- vlastní čistička
- Vybavení
- zařízený
- Dopravní dostupnost
- silnice
- PENB
- G (vyhl. č. 264/2020 Sb.)
- Spočítej stěhování
-
Nemůžete najít tu správnou nemovitost ke koupi? Zadejte si poptávku. Rádi Vám s hledáním pomůžeme.
Realitní novinky
TOP 8 finalistů Realiťáka roku 2025: kdo zamíří do velkého finále?
02.12.2025 08:18
Máte činžovní dům v Praze? Jak ho prodat neveřejně za maximální cenu
30.11.2025 13:18 Komerční sdělení
Typické chyby a dezinformace v realitních inzerátech
27.11.2025 16:12 Komerční sdělení
Proč krátkodobý pronájem předčí standardní Nájemní smlouvu?
21.11.2025 09:47 Komerční sdělení
Revoluce v advokátních úschovách realitních financí
13.11.2025 00:06 Komerční sdělení