Prodej stavebního pozemku 664 m²
K Homolce, Praha 5 - Slivenec
4 990 000 Kč (7 515 Kč/m²) Chci spočítat hypotéku
Stavební pozemek 664 m² v Praze 5 - Slivenec.
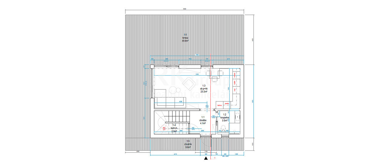
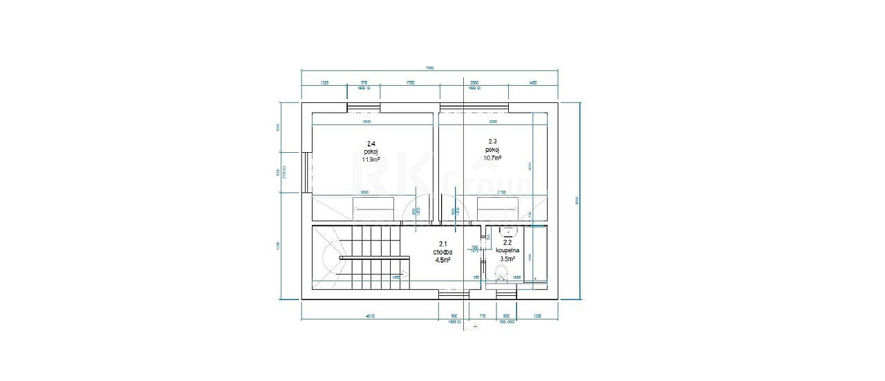
Dovoluji si Vám nabídnout stavební pozemek v krásné přírodě chatové osady ve Slivenci jen 15 min. od Anděla. Pozemek je k prodeji vč. kompletně zpracovaného projektu se stavebním povolením na rodinný dům - dřevostavbu se statusem rekreačního objektu. V okolí je většina staveb obdobných, určena a využívána k trvalému ceroročnímu bydlení. Navržený dům s plnohodnotnou dispozicí 3+kk a zastavěnou plochou 44 m² (+ velká terasa) má dvě obytná podlaží a dvě další malé podkrovní místnosti využitelné jako ložnice, pracovny, či úložné prostory. Ve spodním podlaží je vstupní předsíň se schodištěm, koupelna se sprchovým koutem a toaletou a krásně prosklený obývací pokoj s prostornou kuchyní a vstupem na terasu. Z celého domu jsou krásné výhledy do zeleně. Ve druhém podlaží jsou dvě ložnice + koupelna s vanou a toaletou. V každé ložnici je navrženo žebříkové schodiště do dalších podkrovních místností. Pozemek je mírně svažitý s kaskádou a unikátní tím, že přes něj ve spodní části teče potok Vrutice. V oblasti nehrozí z potoka záplava. Ve spodní části máme také navržené zahradní jezírko, napájené z místního pramene + bude v ceně pozemku vyřešen projekt studny. Pozemek má bohaté vodní zdroje, kde krom místního povrchového pramene pitné vody (všechny okolní domy čerpají vodu z tohoto pramene) jsou zde vodohospodáři zjištěny i prameny spodní vody cca 8 m hluboko. Na pozemku je zavedena elektrika (aktuálně obec dokončuje 3 fáze) a lze zřídit i vlastní pomníček, o což bude zažádáno a v rámci výstavby je plánována realizace. Pozemek se nachází cca 20 m od silnice u které lze parkovat - autem nelze zajet až na pozemek. Na hranici pozemku je to zmíněných 20 m po mírných přírodních schodech. Doprava materiálu na stavbu lze i z druhé strany pozemku, což představíme na osobní prohlídce. Nemovitost je v osobním vlastnictví bez jakýchkoliv právních vad či omezení. Financování je možné i hypotéčním úvěrem, se kterým Vám zdarma a kvalitně pomůžeme. Pro bližší informace, či domluvení prohlídky mě neváhejte kontaktovat.
- Číslo zakázky
- IDNES-8517
- Cena
- 4 990 000 Kč Spočítat hypotéku
- Plocha pozemku
- 664 m2
- Elektřina
- 230V
- Voda
- vlastní zdroj
- Spočítej stěhování
-
Nemůžete najít tu správnou nemovitost ke koupi? Zadejte si poptávku. Rádi Vám s hledáním pomůžeme.
Realitní novinky
Při realitním obchodu nechte nemovitost prověřit a prodávat profesionály
29.10.2025 23:00 Komerční sdělení
Nápady volebních programů na regulaci realitního trhu
09.10.2025 07:36 Komerční sdělení
Jak na rekonstrukci bytu, který chcete pronajímat
01.10.2025 11:16 Komerční sdělení
Investiční příležitost: Rekreační areál u Hluboké nad Vltavou míří mezi nejatraktivnější projekty v ČR
17.09.2025 10:15 Komerční sdělení
Chytrá domácnost pro každého: 5 dostupných gadgetů, které usnadní život
04.09.2025 15:09 Komerční sdělení