Prodej stavebního pozemku 998 m²
Sezemice - Veská, okres Pardubice
4 950 000 Kč (4 960 Kč/m²) Chci spočítat hypotéku
Prodej krásného pozemku ve Veské, na kterém můžete zítra začít stavět
Hledáte ideální místo pro svůj vysněný rodinný dům?
Nabízíme stavební pozemek o velikosti 998 m² v malebné části obce Veská u Sezemic, jen pár minut od Pardubic. Toto místo spojuje blízkost města s klidem přírody - zahradu Vám totiž ozdobí protékající potůček Zmínka a na dohled budete mít i les.
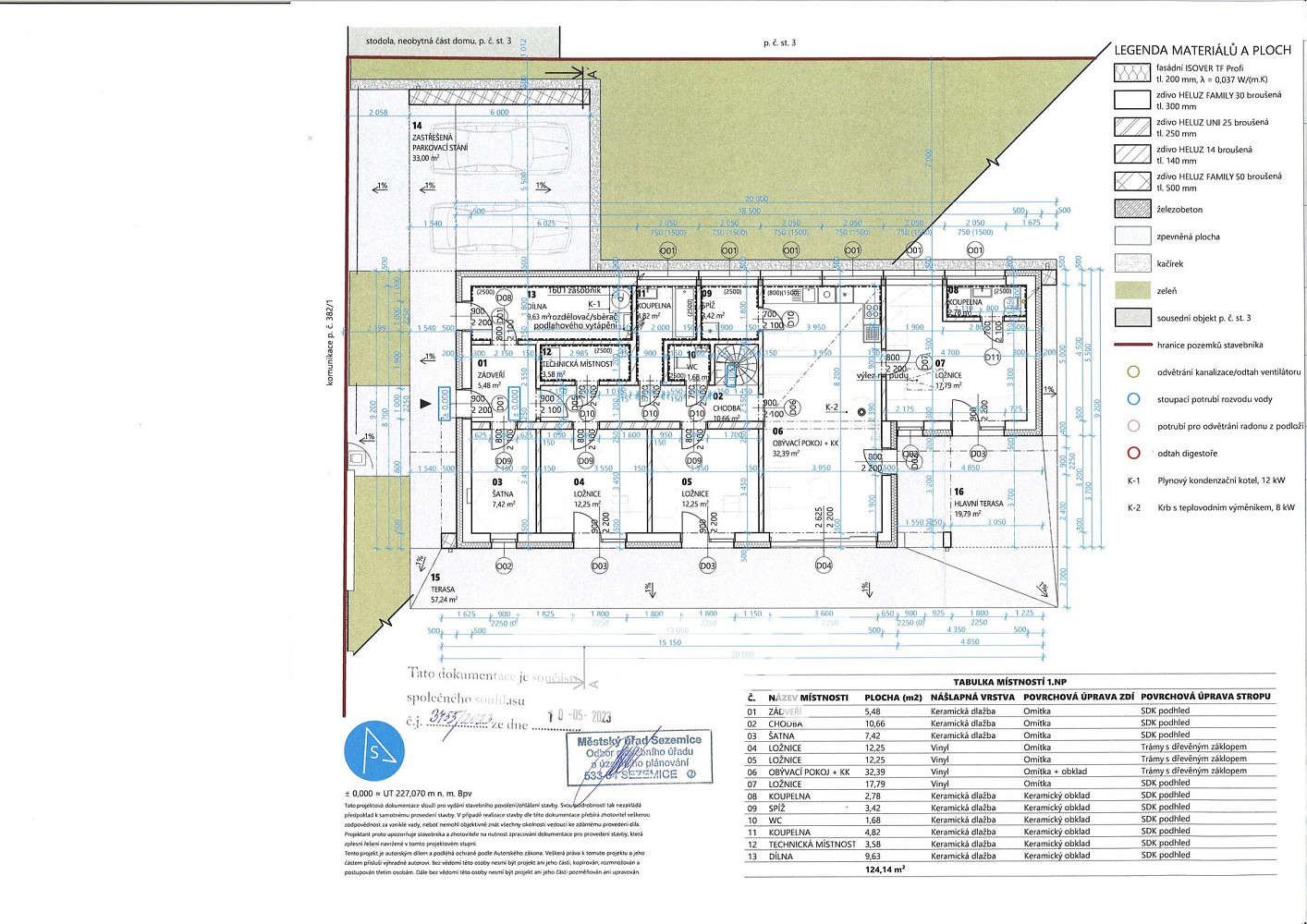
Základní informace o pozemku:
- výměra 998 m²
- cena 4 950 000,- Kč
- součást ceny je projekt rodinného domu 5+kk s garáží (zastavěná plocha 185 m²)
- stavební povolení v platnosti, můžete začít ihned stavět
- inženýrské sítě: voda, elektřina, plyn a kanalizace na hranici pozemku
- pozemek přístupný z místní komunikace, rovinatý (mírně skloněný na jih ke Zmínce), slunný
Velké plus navíc - příroda na dosah.
Pozemek je jedinečný svou polohou, při jeho jižní hranici protéká potůček Zmínka, který lemují vzrostlé stromy a dodávají zahradě romantickou atmosféru.
Přes ulici se nachází les, ideální pro procházky, sport nebo dětské hry.
Tento přírodní rámec vytváří klidné a soukromé prostředí, které se jen těžko hledá tak blízko krajskému městu.
Obec Sezemice - část Veská
Veská je menší klidná část obce Sezemice. Nabízí ideální prostředí pro rodinné bydlení, minimum provozu, přátelské prostředí a skvělou dostupnost do Pardubic (centrum cca 7 km). Přímo do Veské zajíždí MHD, což ocení především rodiny s dětmi nebo ti, kteří chtějí omezit cestování autem. Tuto možnost dává i na Pardubicku velice oblíbená cyklodoprava, kdy do Pardubic vede komfortní cyklostezka a tato vzdálenost je výrazně nižší než cesta autem.
Dopravní dostupnost
- Pardubice centrum cca 7 km
- autem do 10 minut
- nové napojení na dálnici D35, cca 7 km, rychlé spojení na Prahu, Hradec Králové, Svitavy, Olomouc
- MHD přímo do Veské
Proč právě tento pozemek
- zahrada s protékajícím potůčkem a lesem hned vedle
- projekt moderního domu s garážovými stáními v ceně
- platné stavební povolení - bez čekání můžete stavět
- kompletní inženýrské sítě na hranici pozemku
- klidná lokalita, přesto výborná dostupnost Pardubic
- ideální pro rodiny, které hledají spojení přírody a města
Přijďte se podívat, místo Vás nadchne svou atmosférou.
Pro více informací a domluvení prohlídky mne neváhejte kontaktovat, rád Vám poskytnu kompletní dokumentaci.
- Číslo zakázky
- IDNES-00140
- Cena
- 4 950 000 Kč Spočítat hypotéku
- Plocha pozemku
- 998 m2
- Elektřina
- 230V, zavedena
- Voda
- veřejný
- Kanalizace
- septik / jímka
- Spočítej stěhování
-
Nemůžete najít tu správnou nemovitost ke koupi? Zadejte si poptávku. Rádi Vám s hledáním pomůžeme.
Realitní novinky
Revoluce v advokátních úschovách realitních financí
13.11.2025 00:06 Komerční sdělení
Jak navrhnout funkční a stylovou koupelnu v malém bytě?
11.11.2025 08:10 Komerční sdělení
Jak vybrat správnou výšku a šířku lešení
05.11.2025 16:19 Komerční sdělení
Při realitním obchodu nechte nemovitost prověřit a prodávat profesionály
29.10.2025 23:00 Komerční sdělení
Nápady volebních programů na regulaci realitního trhu
09.10.2025 07:36 Komerční sdělení