Prodej stavebního pozemku 636 m²
Staré Hradiště - Brozany, okres Pardubice
3 625 200 Kč (5 700 Kč/m²) Chci spočítat hypotéku
Prodej pozemku 636 m² se stavebním povolením na RD, Staré Hradiště - Brozany
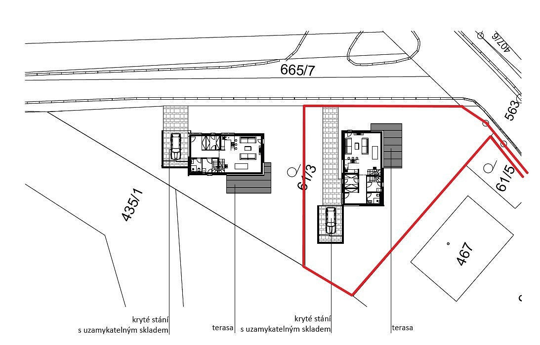
Exklusivně nabízíme k prodeji STAVEBNÍ POZEMEK (636 m²) S VYDANÝM STAVEBNÍM POVOLENÍM NA VÝSTAVBU RODINNÉHO DOMU o dispozici 5+KK (125,93 m², PENB A) s terasou, krytým parkovacím stáním a pěknou zahradou. Můžete ihned začít stavět - neztrácíte čas a energii zajišťováním projektové dokumentace ani zdlouhavým vyřizováním stavebního povolení.
Pozemek se nachází ve vyhledávané lokalitě (Staré Hradiště - Brozany), cca 4km od Pardubic, s výhledem na místní dominantu - Kunětickou horu. Je rovinný, slunný a dle vydaného stavebního povolení bude napojen na inženýrské sítě – el. energie, voda, kanalizace, sítě jsou dovedeny na pozemek. Přístup je zajištěn z obecní asfaltové komunikace.
Pozemek vznikne rozdělením většího pozemku o celkové výměře 1 215 m² na dva menší pozemky (579 m² a 636 m²), na nichž jsou projektovány dva samostatné rodinné domy. Pozemek je tak ideálním místem pro bydlení jedné rodiny, ale i příležitostí pro samostatné bydlení více generací nebo spřátelených rodin, malý developerský projekt či investici. Kompletní projektová dokumentace k oběma rodinným domům je k nahlédnutí v kanceláři.
V Brozanech je zastávka MHD (250 m), mateřská škola, sportovní hala a restaurace. Kompletní občanská vybavenost je v sousedních Pardubicích, kam pohodlně dojedete autem přibližně za 5 minut nebo po cyklostezce, která vede v těsné blízkosti pozemku. Pro rychlou dopravu do vzdálenějších cílů oceníte i blízkost dálnice D11 a nově i D35.
Financování koupě této nemovitosti Vám rádi zajistíme prostřednictvím našeho partnera. Majitel si vyhrazuje právo výběru kupujícího. Pro více informací a prohlídku prosím kontaktujte makléře.
- Číslo zakázky
- IDNES-00103
- Cena
- 3 625 200 Kč Spočítat hypotéku
- Plocha pozemku
- 636 m2
- Elektřina
- 230V
- Voda
- veřejný
- Kanalizace
- veřejná kanalizace
- Spočítej stěhování
-
Nemůžete najít tu správnou nemovitost ke koupi? Zadejte si poptávku. Rádi Vám s hledáním pomůžeme.
Realitní novinky
Proč krátkodobý pronájem předčí standardní Nájemní smlouvu?
21.11.2025 09:47 Komerční sdělení
Revoluce v advokátních úschovách realitních financí
13.11.2025 00:06 Komerční sdělení
Jak navrhnout funkční a stylovou koupelnu v malém bytě?
11.11.2025 08:10 Komerční sdělení
Jak vybrat správnou výšku a šířku lešení
05.11.2025 16:19 Komerční sdělení
Při realitním obchodu nechte nemovitost prověřit a prodávat profesionály
29.10.2025 23:00 Komerční sdělení