Pronájem bytu 2+kk 51 m²
Lidická, Dubí, okres Teplice
12 000 Kč/měsíc
Pronájem nadstandardního bytu 2kk/51 m², Lidická, Dubí
Nadstandardní a nové bydlení v žádané lokalitě města Dubí. Cca 300 m od supermarketu Fikko.
Od ledna 2026 bude v provozu fotovoltaika, která sníží spotřebu elektrické energie o 50%.
Jedná se o nově rekonstruovaný bytový dům, vytápěný tepelným čerpadlem - každý byt má podlahové vytápění, vlastní parkovací stání v uzavřeném dvoře hlídaném kamerou a nabíjecí stanicí na elektromobily, internet v ceně, společná pergola na posezení a grilování.
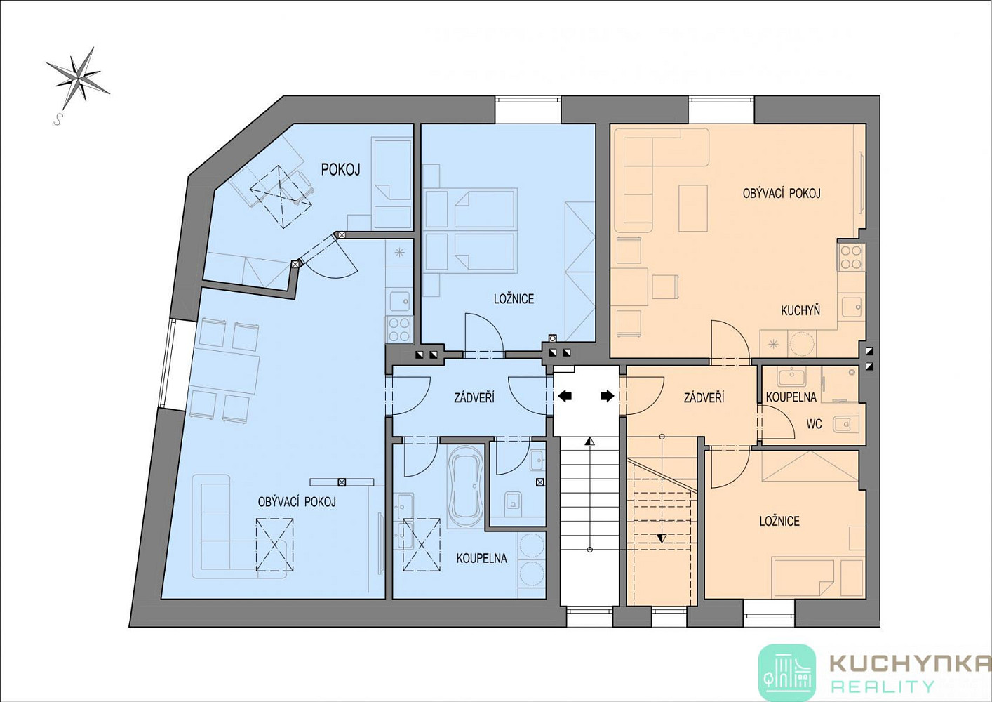
Podkrovní bytová jednotka o dispozici 2kk/51 m² se nachází ve 3. podlaží (2. patro).
Na půdorysu je byt vyznačený oranžově na pravé straně.
Konkrétně Vás nadchne prostorný obývací pokoj s kuchyní, vytápění tepelným čerpadlem s topením v podlaze, pochozí podlaha kvalitní vinyl, vkusná koupelna se sprchovým koutem a komorou v bytě.
Každý byt má domácí telefon, vlastní vodoměr a elektro bojler na ohřev teplé vody.
Nájem 12 000 Kč
Služby 3 000 Kč (vytápění, internet, parkování, úklid,.... )
Studená voda 500 Kč/osoba
Elektřina se přepisuje na nájemníka ( jedná se o běžnou spotřebu elektřiny + bojler na ohřev TUV)
Od ledna 2026 bude v provozu fotovoltaika, která sníží spotřebu elektrické energie o 50%.
Vratná kauce 30 000 Kč
Provize RK 12 000 Kč
V okolí naleznete vše potřebné ke spokojenému životu (restaurace, školu, školku, obchody, sportoviště, lékaře, turistické a cyklo trasy, atd)
V případě zájmu mě neváhejte kontaktovat.
Nemůžete najít tu správnou nemovitost k pronájmu? Zadejte si poptávku. Rádi Vám s hledáním pomůžeme.
Realitní novinky
Jak navrhnout funkční a stylovou koupelnu v malém bytě?
11.11.2025 08:10 Komerční sdělení
Jak vybrat správnou výšku a šířku lešení
05.11.2025 16:19 Komerční sdělení
Při realitním obchodu nechte nemovitost prověřit a prodávat profesionály
29.10.2025 23:00 Komerční sdělení
Nápady volebních programů na regulaci realitního trhu
09.10.2025 07:36 Komerční sdělení
Jak na rekonstrukci bytu, který chcete pronajímat
01.10.2025 11:16 Komerční sdělení