Pronájem bytu 2+kk 55 m²
Za Penzionem, Mohelnice, okres Šumperk
12 000 Kč/měsíc
Pronájem bytu v osobním vlastnictví 2+kk Mohelnice
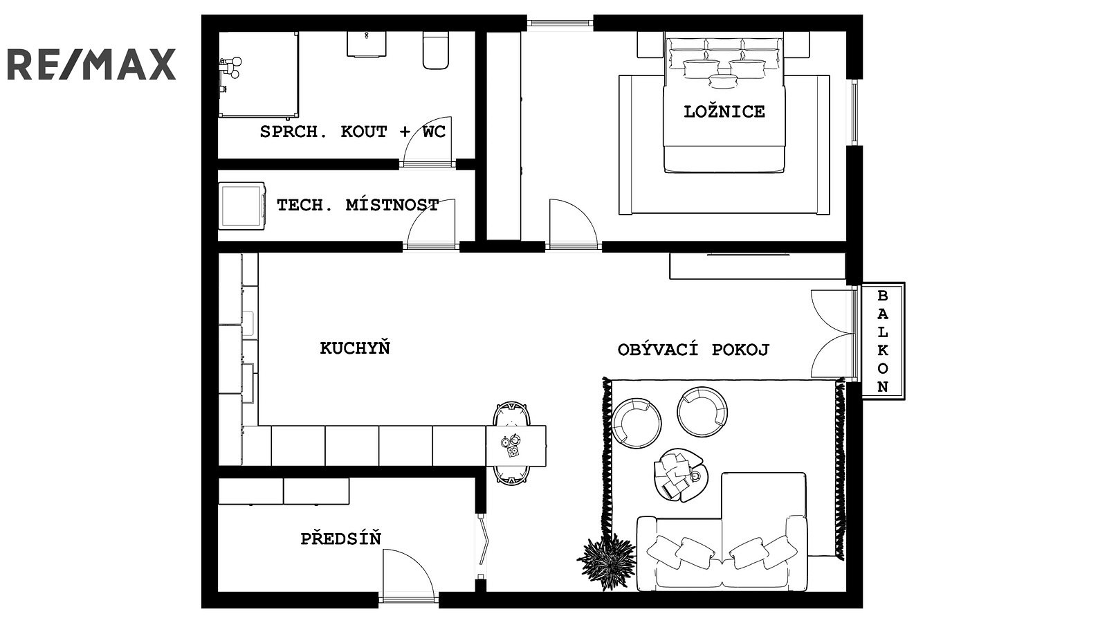
Nabízíme vám k pronájmu byt 2+kk v Mohelnici v nové výstavbě. Byt ještě voní novotou, je prostorný, plně vybavený ( lednice s mrazákem, trouba, varná deska, myčka, pračka se sušičkou). Veškeré zařízení na fotodokumentaci je možno užívat. V předsíni je nově instalována skříň s dostatkem úložného prostoru. Nově je vybudováno zádveří a v ložnici je nová velká šatní skříň. K bytu náleží balkon cca 2,5 m² a sklep. Parkovací stání u domu. Pro více informací a sjednání prohlídky kontaktujte realitního makléře. Doporučujeme prohlídku. Volné od 1.2.2026, po dohodě je možné i dříve.
- Číslo zakázky
- IDNES-211-NP04534
- Cena
- 12 000 Kč/měsíc
- Konstrukce budovy
- skeletová
- Stav bytu
- velmi dobrý stav
- Vlastnictví
- osobní
- Lokalita objektu
- klidná část
- Výstavba
- 2019
- Užitná plocha
- 55 m2
- Podlaží
- 3. patro (4. NP)
- Počet podlaží budovy
- 4 podlaží
- Balkon
- 3 m2
- Výtah
- Parkování
- parkovací místo
- Televize
- Elektřina
- 230V
- Vybavení
- zařízený
- Datum nastěhování
- 01.02.2025
- PENB
- B (vyhl. č. 78/2013 Sb.)
- Bezbariérový přístup
- Spočítej stěhování
-
Nemůžete najít tu správnou nemovitost k pronájmu? Zadejte si poptávku. Rádi Vám s hledáním pomůžeme.
Realitní novinky
Jak prodat nemovitost chytře a bezpečně: projekt Realiťák roku krok za krokem radí veřejnosti
08.12.2025 07:46
Zhodnoťte svou nemovitost s realitní kanceláří, která myslí jinak
04.12.2025 03:15 Komerční sdělení
TOP 8 finalistů Realiťáka roku 2025: kdo zamíří do velkého finále?
02.12.2025 08:18
Máte činžovní dům v Praze? Jak ho prodat neveřejně za maximální cenu
30.11.2025 13:18 Komerční sdělení
Typické chyby a dezinformace v realitních inzerátech
27.11.2025 16:12 Komerční sdělení