Pronájem kanceláře 65 m²
Pardubická, Chrudim - Chrudim IV
11 020 Kč/měsíc (170 Kč/m²)
Pronájem komerční Kanceláře, 65m², Chrudim, Chrudim IV
Pronájem skladu / kanceláře 65 m² – zrekonstruovaný, nízké náklady, skvělá dispozice
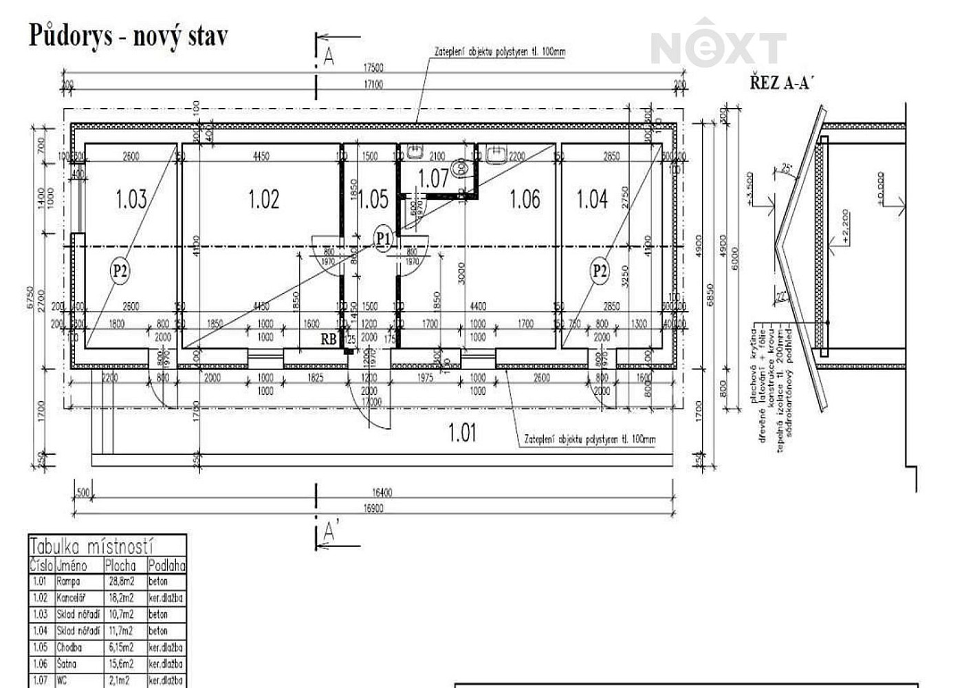
Nabízíme k pronájmu zrekonstruovaný sklad nebo provozovnu o celkové výměře 65 m², rozdělený do 4 samostatných místností, ideálních pro různé typy podnikání – drobnou výrobu, servis, skladování nebo řemeslnou činnost.
Vybavení a stav:
• Objekt je po čerstvé rekonstrukci vnější fasády – nová zateplená omítka, která výrazně snižuje tepelné ztráty.
• Topení vzduch–vzduch – ekonomický a efektivní způsob vytápění s minimálními náklady na energie.
• Každá místnost má vlastní vstup nebo je propojena, možnost flexibilního využití prostoru dle potřeb nájemce.
Lokalita:
• Dobrá dostupnost, vhodné pro příjezd autem nebo menší dodávkou.
• Možnost parkování v blízkosti objektu.
Výhody:
• Nízké provozní náklady
• Vhodné pro podnikání, řemesla i skladování
• Okamžitě k dispozici
Cena nájmu je 11.020 Kč + DPH + 1.980 Kč služby + energie. Kauce: 2 měsíční nájmy, odměna RK: 13.334 Kč
Neváhejte nás kontaktovat pro více informací nebo sjednání prohlídky.
- Číslo zakázky
- IDNES-N112902
- Cena
- 11 020 Kč/měsíc
- Konstrukce budovy
- cihlová
- Stav budovy
- dobrý stav
- Typ komerční nemovitosti
- kanceláře
- Lokalita projektu
- klidná část
- Plocha pozemku
- 65 m2
- Užitná plocha
- 65 m2
- Podlaží umístění
- přízemí (1. NP = nadzemní podlaží)
- Vybavení
- nezařízený
- Datum nastěhování
- 11.07.2025
- PENB
- G (vyhl. č. 78/2013 Sb.)
- Spočítej stěhování
-
Nemůžete najít tu správnou nemovitost k pronájmu? Zadejte si poptávku. Rádi Vám s hledáním pomůžeme.
Realitní novinky
Revoluce v advokátních úschovách realitních financí
13.11.2025 00:06 Komerční sdělení
Jak navrhnout funkční a stylovou koupelnu v malém bytě?
11.11.2025 08:10 Komerční sdělení
Jak vybrat správnou výšku a šířku lešení
05.11.2025 16:19 Komerční sdělení
Při realitním obchodu nechte nemovitost prověřit a prodávat profesionály
29.10.2025 23:00 Komerční sdělení
Nápady volebních programů na regulaci realitního trhu
09.10.2025 07:36 Komerční sdělení