Pronájem kanceláře 59 m²
Smetanovo náměstí, Ostrava - Moravská Ostrava
9 000 Kč/měsíc (153 Kč/m²)
Pronájem kanceláře 59 m², ul. Smetanovo náměstí, Ostrava - Moravská Ostrava
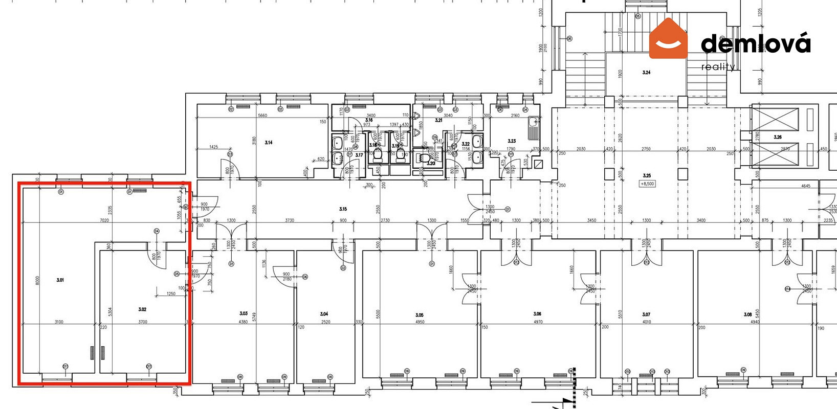
Nabízíme Vám k pronájmu atraktivní kancelářské prostory v komerční budově na Smetanově náměstí v centru Ostravy. Administrativní budova má recepci (po-pá 6-21h), přístup 24/7, každodenní úklid a dva výtahy. Celková výměra prostoru je 59 m² a je rozdělen na 2 kanceláře (viz. půdorys ve fotogalerii). V jedné kanceláři je klimatizace. Sociální zázemí včetně kuchyňky je na chodbě u kanceláře. Kanceláře jsou zabezpečeny alarmem napojeným na PCO a kamerovým systémem. V bezprostřední blízkosti je dostatek parkovišť pro klienty. Nájem 9.000 Kč + služby 7331 Kč, provize 1 měs nájem + DPH. Kauce 2 x měs. nájem. Doporučuji prohlídku.
- Číslo zakázky
- IDNES-0197
- Cena
- 9 000 Kč/měsíc
- Konstrukce budovy
- cihlová
- Stav budovy
- velmi dobrý stav
- Typ komerční nemovitosti
- kanceláře
- Zastavěná plocha
- 866 m2
- Užitná plocha
- 59 m2
- Počet podlaží
- 6
- Podlaží umístění
- 2. patro (3. NP)
- Počet kanceláří
- 2
- Výtah
- Počet parkovacích míst
- 1
- Topení
- ústřední - dálkové
- Elektřina
- 230V
- Odpad
- veřejná kanalizace
- Vybavení
- nezařízený
- Datum nastěhování
- 01.01.2026
- PENB
- D (vyhl. č. 264/2020 Sb.)
- Bezbariérový přístup
- Spočítej stěhování
-
Nemůžete najít tu správnou nemovitost k pronájmu? Zadejte si poptávku. Rádi Vám s hledáním pomůžeme.
Realitní novinky
Máte činžovní dům v Praze? Jak ho prodat neveřejně za maximální cenu
30.11.2025 13:18 Komerční sdělení
Typické chyby a dezinformace v realitních inzerátech
27.11.2025 16:12 Komerční sdělení
Proč krátkodobý pronájem předčí standardní Nájemní smlouvu?
21.11.2025 09:47 Komerční sdělení
Revoluce v advokátních úschovách realitních financí
13.11.2025 00:06 Komerční sdělení
Jak navrhnout funkční a stylovou koupelnu v malém bytě?
11.11.2025 08:10 Komerční sdělení